EasyManua.ls Logo

Sol PLUS Series - Page 91

Sol PLUS Series
96 pages
Print Icon
To Next Page IconTo Next Page
To Next Page IconTo Next Page
To Previous Page IconTo Previous Page
To Previous Page IconTo Previous Page
Loading...
35
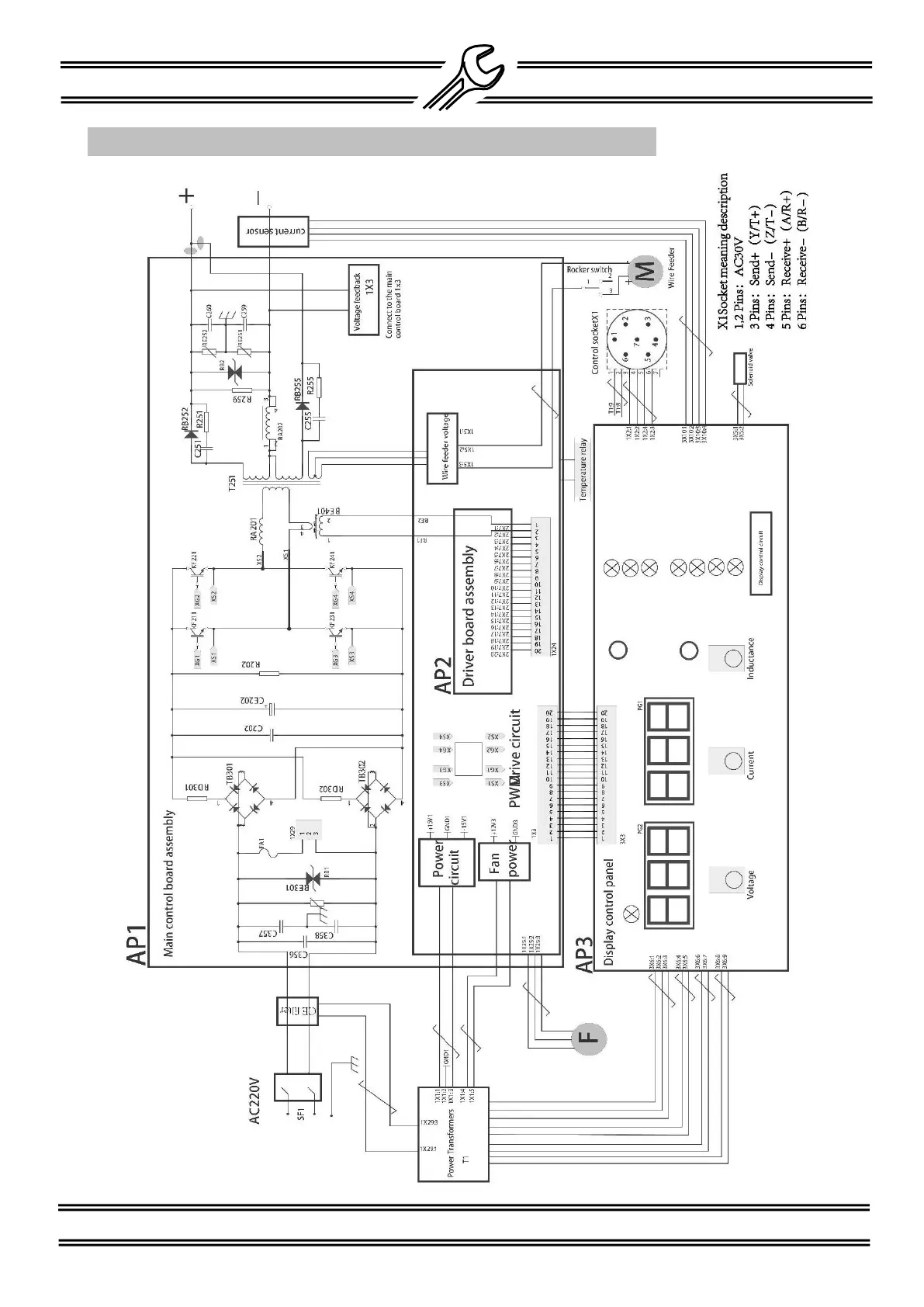
Instruction Manual - Technical Section
16. ELECTRIC SCHEME / SCHEMA ELETTRICO