EasyManua.ls Logo

Sony CFD-V27 - 2 Diagrams; Block Diagram

Sony CFD-V27
56 pages
Print Icon
To Next Page IconTo Next Page
To Next Page IconTo Next Page
To Previous Page IconTo Previous Page
To Previous Page IconTo Previous Page
Loading...
CFD-V27
Focus Bias Check
This check is to be done when the optical block replaced.
Check Procedure:
1. Connect the oscilloscope to test point TP (VC) and TP (RF) on
MAIN board. Insert disk (YEDS-18).
2. Put the set into test mode.
3. Opitical pick-up setting to the center by + or – button pushing.
4. Press the u button and press the DISPLAY ENTER button.
(Tracking servo ON)
5. Check that the oscilloscope wavewform is as shown in the figure
below (eye pattern).
A good eye pattern means that the diamond shape () in the
center of the waveform can be clearly distinguished.
6. Release test mode after adjustment is completed.
RF signal reference waveform (eye pattern)
When observing the eye pattern, set the oscilloscope for AC range
and raise vertical sensivity.
[MAIN BOARD] (Conductor side)
TRAVERSE Check
This check is to be done when the optical pick-up block is replaced.
Check Procedure:
1. Connect the oscilloscope to test point TP (VC) and TP (TE) on
MAIN board. Insert disk (YEDS-18) .
2. Put the set into test mode.
3. Optical pick-up setting to the center by > or . button
pushing.
4. Press u button.
5. Check that the oscilloscope traverse waveform is symmetrical,
as shown in the figure below.
6. Release test mode after adjustment is completed.
[MAIN BOARD] (Conductor side)
VOLT/DIV : 0.2V
TIME/DIV : 500n
s
1.1Vp-p – 1.3Vp-p
— 3 — — 4 — — 5 — — 6 —
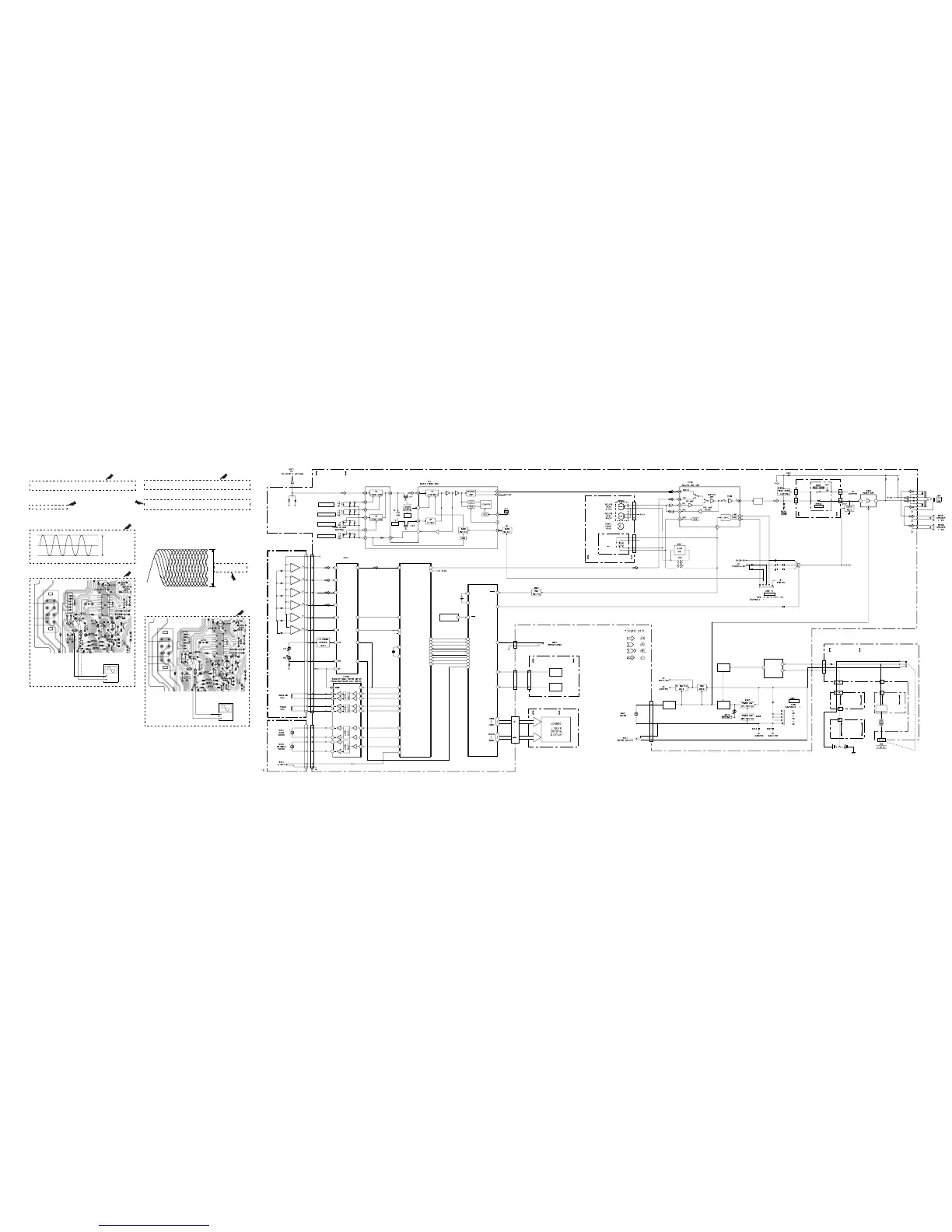
SECTION 2
DIAGRAMS
2-1. BLOCK DIAGRAM
RFO
FM TRACKING
FM F-COVERAGE
AM F-COVERAGE
AM IF
FM IF
L3, CT3
AM TRACKING
L1, CT1
L2, CT2
L4, CT4
OPTICAL PICK-UP
BLOCK
(KSM-880DAA)
5
7
6
4
8
3
10
12
14
15
13
16
CNB701
3
4
1
2
5
6
CNP702
1-4
5-18
CNP801
CNJ804
LCD BOARD
CONTROL BOARD
CNP304
CNJ304
3
2
4
31
31
4
4
CNP907
CNB907
CNB907
CNP908
BATTERY
BOARD
POWER
BOARD
HALF
BATTERY
BOARD
DRY BATTERY
SIZE "D"
(IEC DESIGNATION R20)
6PCS. 9V
2
2
KH902
KH904
RECT
D901-904
T901
POWER
TRANSFORMER
6
KH307
KH307
KH307 KH306
CNP902
INLET BOARD
VOLUME BOARD
RECORD SWITCH BOARD
26
MAIN BOARD
1
CNP301
1
CNB302
CNJ302
+B(COM+5V)
S301
REC PB
4
312
2
Q102
AUDIO
AMP
1
11
12
14
13
15
16
27 SSTP
5A
6B
8D
7C
10
11
3
4
12
24 30 TFDR
20 14 XLON
23 31 TRDR
5 32 FFDR
6 33 FRDR
2 28 SFDR
3 29 SRDR
25 26 MDP
MUTE
16
51 RFAC
FE 14
3FE
301 RST
SENS 8
5 SENS
SCOR 20
1 SCOR
SCLK 9
6 SCLK
SQCK 2
7 SQCK
SQSO 1
8 SQSO
XRST 3
9 XRST
CLOK 7
10 CLOCK
XLAT 6
11 LATCH
DATA 5
12 DATA
13 AGCCONT
TE 13
LD ON 22
41 TE
40 SE
AGCCONT 20
67
66
X701
16.9344MHz
IC702
DIGITAL SERVO
DIGITAL SIGNAL PROCESSOR
LOUT1 72
LOUT2 75
IC801
LCD DRIVE
SYSTEM CONTROL
IC802
RESET
14REC
3MUTE
2DOOR
CNP803
22KEY-1
KEY
SWITCH
S803-806
23KEY-2
KEY
SWITCH
S801,802
41
38
55
42
XTAI
XTAO
31
32
X801
4MHz
XTAL
EXTAL
1
3
5
CONT
VM
VOUT
IC401
POWER CONTROL
MOTOR
SW
VOLTAGE
CONTROL
Q402
Q409
VOLTAGE
CONTROL
Q405
10
RF AMP
FUNCTION
VOLUME
R
L
1
FUNCTION
OFF
OFF
VOLT/DIV : 0.1V
TIME/DIV : 1ms
1.0V-2.0V
TP
(VC)
TP
(FE)
TP
(RF)
TP
(TE)
+
Oscilloscope
(DC range)
TP (VC)
TP (TE)
TP (FE)
TP
(VC)
TP
(FE)
TP
(RF)
TP
(TE)
+
Oscilloscope
(DC range)
TP (VC)
TP (RF)

Related product manuals