EasyManua.ls Logo

Sony CX-LEM200 - Schematic Diagram - Control Section

Sony CX-LEM200
47 pages
Print Icon
To Next Page IconTo Next Page
To Next Page IconTo Next Page
To Previous Page IconTo Previous Page
To Previous Page IconTo Previous Page
Loading...
2424
CX-LEM200
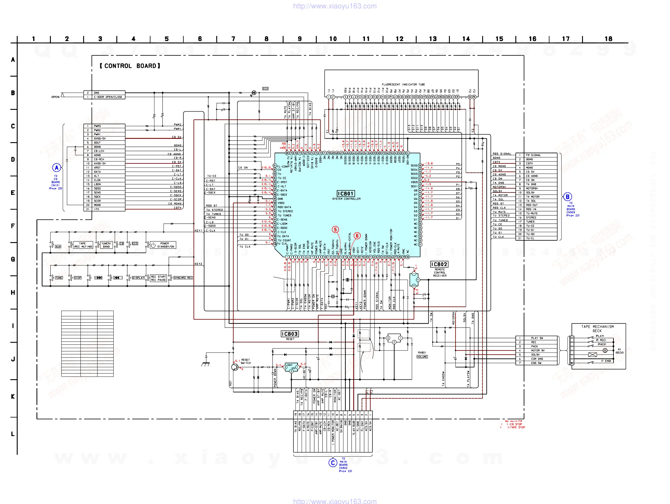
6-8. Schematic Diagram – Control Section –
• See page 16 for Waveforms.
Ver 1.1 2003.06
*
Ref.NO.
*
CND,E51,MX
EXCEPT
CND,E51,MX
C801,802
C804,808,812,814
C805,822
C815
C818
C829
C834,835
C839,840,841
D811
20P 24P
(E)100/6.3V
(E)22/16V
470P
(E)1/50V
(E)47/25V
(E)4.7/50V
0.1
SLR-342VRT32
(E)100/10V
(E)22/6.3V
0.001
-
(E)4.7/16V
(E)47/16V
SELS6B14C-TP5
-
IC802
R814
R817
R821
R826
R875
R876
R892
NJL64H400A-1 NJL64H380A
390K
-
10K
0
1K
1K
1K
100K
1K
100K
100
1K
-
10K
D812,813 - 1SS133T-77
R898 -
4.7K
1K:CND,E51,MX
4.7K:AUS,SP,MY,TW,KR
5.6K:US,AEP,UK
AU MUTE
AU MUTE
S807
S808
S809S810S811S812
S801S802S803S804S805
S806
Q815
IC803
RV801
0:US,CND,E51,MX
47K:AUS,SP,MY,TW
4.7K:KR
AEP,UK,AUS
SP,MY,TW,KR
C809
C811
C813
D807
D808
D811
R822
R840
R841
R842R843R844R845R846
R847
R848R850R851R852R853R854
R883
R882
R884
R839
R826
R827
R830
R831
R832
R833
R834
R803
R804
R805
R806
C836
R819
R877
R878
R858
R857
R869
R870
R885
R886
R887
R888
R889
R890
R891
R893
S813
R871
R894
R895
C815
R809
R872
R897
X802
R820
X801
R865
R810
C803
C820
R866
R879
R881
R880
R864
D809
D810
R814
C802
R892
IC801
D812
D813
R876 R875
R812
R817
R828
R813
R829
R835
R836
R849
R811
R801
R802
R896
R807
R808
RP20
RP19
RP18
RP17
RP16
RP15
RP14
RP13
RP12
RP11
RP10
RP09
RP08
RP07
RP06
RP05
RP04
RP03
RP02
RP01
RG08
RG07
RG06
RG05
RG04
RG03
RG02
R
G01
IC802
C840
C841
FL801
S800
R821
C818
C819
C812
R823
R824
R825
C814
C801
C804
C816
C817
R818
C805
C806
R859
R855
C821
C829
C828
C830
C831
R863 R861
R860
C822
D803
C808
C835
C807
C834
C839
CN802
CN801
CNP804
CN805
CN803
C810
R815
R856
R867
R868
KTC3875Y
PST592C
0.01
0.01
0.01
1SS133T-77
1SS133T-77
1k
2.2k
2.2k
2.2k1k4.7k47010k
10k
2.2k2.2k1k4.7k47010k
2.2k
10k
1k
10k
1k
1k
1k
1k
1k
1k
1k
1k
1k
1k
18p
1k
47k
47k
1k
1k
1k
1k
100k
100k
100k
100k
100k
100k
100k
100k
22k
10k
1k
47k
100
100
8.64M
Hz
100k
32.768KHz
10k
10M
0.01
0.01
10k
22k
2.2k
10k
10k
1SS133T-77
1SS133T-77
LC876756C-51E4
1k
1k
1k
1k
1k
1k
2.2k
22k
*
*
*
*
*
*
*
47k
1k
1k
100K
100K
100K
100K
100K
100K
100K
100K
100K
100K
100K
100K
100K
100K
100K
100K
100K
100K
100K
100K
100K
100K
100K
100K
100K
100K
100K
100K
*
*
HNA-08SS49T
*
*
*
*
*
*
*
*
*
*
*
*
**
*
*
*
*
*
*
*
1
50V
1k
1k
1k
20p
20p
56k
0.01
100
22k
0.01
470
6.3V
0.1
0.1
10k 47k
47k
1SS133T
-77
0.01
21P
7P
2P
19P
21P
0.01
220k
10k
47k
*
*
w
w
w
.
x
i
a
o
y
u
1
6
3
.
c
o
m
Q
Q
3
7
6
3
1
5
1
5
0
9
9
2
8
9
4
2
9
8
T
E
L
1
3
9
4
2
2
9
6
5
1
3
9
9
2
8
9
4
2
9
8
0
5
1
5
1
3
6
7
3
Q
Q
TEL 13942296513 QQ 376315150 892498299
TEL 13942296513 QQ 376315150 892498299
http://www.xiaoyu163.com
http://www.xiaoyu163.com