EasyManua.ls Logo

Sony RMT-D175A - Interface Control Block Diagram

Sony RMT-D175A
90 pages
Print Icon
To Next Page IconTo Next Page
To Next Page IconTo Next Page
To Previous Page IconTo Previous Page
To Previous Page IconTo Previous Page
Loading...
DVP-NS72HP/NS77H/NS77HP/NS78H/NS78HP
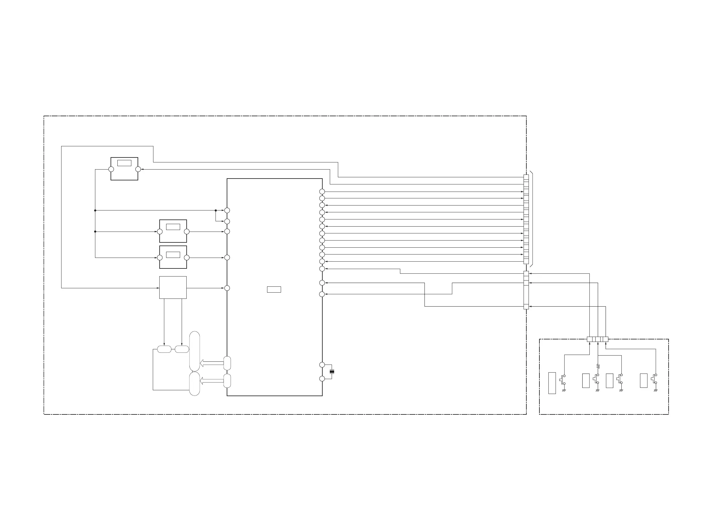
3-8. INTERFACE CONTROL BLOCK DIAGRAM
3-15 3-16E
ND402
FLUORESCENT
INDICATOR
TUBE
3.3V
REGULATOR
IC407
IR
VCC
VDD
/RST
VKK
53
69
70
77
EVER+3.3V
EVER+3.3V
EVER+3.3V
SW-10V
1~2 31~32
SEG 1-17
DIG 1-8
AD1
AD2
XIN
XOUT
SYSRST
/CS
SI
SO
/SC
/AMUTE
/VMUTE
BUSY
PCONT
POWER
O/C
SYSRST
EVER+5V
SW-10V
XIFCS
SOO
SIO
SCO
A-MUTE
V-MUTE
XIFBUSY
PCONT
POWER-SWITCH
CN402
CN402
CN001
X401
8MHz
4 5
7
CEC
19
78
5
11
8
40
14
15
16
17
23
24
27
26
37
35
34
36
2
3
IF-154 BOARD
(SEE PAGE 4-7 to 4-8)
CEC
IR
RECEIVER
IC406
3 1
RESET
VFD DRIVER
CIRCUIT
IC408
2 1
5
15
16
14
11
12
9
4
8
13
6
3
1
SYSTEM CONTROL
MV-55/56
(SEE PAGE 3-5 to 3-6)
~~
IC404
IF MICON
4,6,7,9,10,12,13,16,17,
19,20,22,23,24,26,27,29
5,8,11,14,18,
21,25,28
OPEN/CLOSE
STOP
5
4
3
PLAY
SW-512 BOARD
(SEE PAGE 4-27 to 4-28)
PROG
1 2 3

Table of Contents

Related product manuals