EasyManua.ls Logo

Sony STR-K660P - Page 26

Sony STR-K660P
44 pages
Print Icon
To Next Page IconTo Next Page
To Next Page IconTo Next Page
To Previous Page IconTo Previous Page
To Previous Page IconTo Previous Page
Loading...
2626
STR-K660P
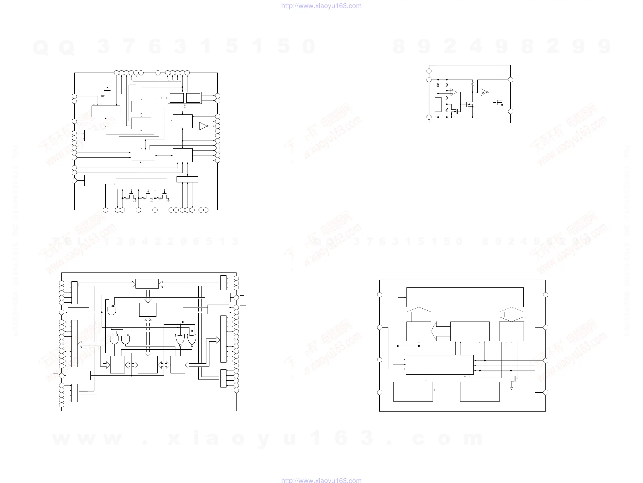
• IC BLOCK DIAGRAMS
38
37
36
23
24
1 2 3 4
5
44
8 9 10
46
17
22
21
20
30
35
252627282932
3334
16
45
13
14
15
47
40
41
48
CL
39XSEL
CE
DI
EMPHA
AUDIO
DISEL
DOUT
DINO
DINI
DIN2
6
DGND
7
DVDD
11
AVDD
12
AGND
DOSEL0
R
VIN
LPF
CKSEL0
XSTATE
18 DGND
19 DVDD
XIN
XOUT
XMCK
DVDD
31
DGND
DO
CSFLAG
F0/P0/C0
F1/P1/C1
F2/P2/C2
VF/P3/C3
AUTO
BPSYNC
ERROR
DATAO
DOSEL1
CKOUT
BCK
LRCK
CKSEL1
MODE0
MODE1
42DGND
43DVDD
XMODE
TIMING
MICROCOMPUTER
INTERFACE
SAMPLING
FREQUENCY
C BIT
DETECT
PA/PB
DETECT
LOCK
DETECT
SYSTEM
RESET
MODE
SELECT
INPUT
CIRCUIT
DATA
DEMODULATOR
PLL
CLOCK
2
3
4
5
6
7
8
9
10
11
12
13
14
15
16
17
18
19
20
21
22
44
43
42
41
40
39
38
37
36
35
34
33
32
31
30
29
28
27
26
25
24
23
64K x 16
MEMORY
ARRAY
SENSE AMP
&
WRITE
PRIVER
HIGH
BYTE
I/O
BUFFER
LOW
BYTE
I/O
BUFFER
CHIP ENABLE
BUFFER
WRITE ENABLE
BUFFER
OUTPUT ENABLE
BUFFER
ROW/COLUMN
DECODER
BYTE ENABLE
BUFFER
1
A3
A2
A1
A0
CS
I/O 0
I/O 1
I/O 2
I/O 3
VDD
VSS
I/O 4
I/O 5
I/O 6
I/O 7
WE
A15
A14
A13
A12
NC
A4
A5
A6
A7
OE
BHE
BLE
I/O 15
I/O 14
I/O 13
I/O 12
VSS
VDD
I/O 11
I/O 10
I/O 9
I/O 8
NC
A8
A9
A10
A11
NC
8
VCC
7
TEST
6
SCL
5
SDA
1
A0
2
A1
3
A2
4
GND
ADDRESS
DECODER
SLAVE WORD
ADDRESS REGISTER
DATA
REGISTER
16 K bit EEPROM ARRAY
CONTROL CIRCUIT
POWER SUPPLY
VOLTAGE DETECTION
HIGHT VOLTAGE
GENERATOR
11 bit
8 bit
11 bit
STOPSTART
ACK
IC1101 LC89056W-E (DIGITAL BOARD)
IC1202 IS61LV6416-10TLT (DIGITAL BOARD)
IC1602 PST3629NR (DIGITAL BOARD)
IC1604 BR24C16F-E2 (DIGITAL BOARD)
VREF
5
4
3
2
1
OUT
VDD
GND
NC
CD
w
w
w
.
x
i
a
o
y
u
1
6
3
.
c
o
m
Q
Q
3
7
6
3
1
5
1
5
0
9
9
2
8
9
4
2
9
8
T
E
L
1
3
9
4
2
2
9
6
5
1
3
9
9
2
8
9
4
2
9
8
0
5
1
5
1
3
6
7
3
Q
Q
TEL 13942296513 QQ 376315150 892498299
TEL 13942296513 QQ 376315150 892498299
http://www.xiaoyu163.com
http://www.xiaoyu163.com

Related product manuals