EasyManua.ls Logo

STIEBEL ELTRON wpf 20

STIEBEL ELTRON wpf 20
44 pages
To Next Page IconTo Next Page
To Next Page IconTo Next Page
To Previous Page IconTo Previous Page
To Previous Page IconTo Previous Page
Loading...
18 | WPF 20/27/40/52/66 WWW.STIEBEL-ELTRON.COM
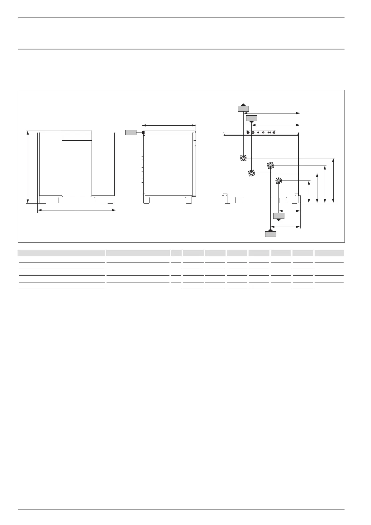
14. Specification
14.1 Water and brine connection
1250
860
340
470
772
900
1150
720
600
480
360
e01
e02
f01
f02
b01
D0000016833.ai
WPF 20 WPF 27 WPF 35 WPF 40 WPF 52 WPF 66 WPF 27 HT
b01 Entry electrical cables
e01 Heating flow Male thread G 2 G 2 G 2 G 2 G 2 G 2 G 2
e02 Heating return Male thread G 2 G 2 G 2 G 2 G 2 G 2 G 2
f01 Heat source flow Male thread G 2 G 2 G 2 G 2 G 2 G 2 G 2
f02 Heat source return Male thread G 2 G 2 G 2 G 2 G 2 G 2 G 2
INSTALLATION
SPECIFICATION

Table of Contents

Other manuals for STIEBEL ELTRON wpf 20

Related product manuals