EasyManua.ls Logo

Sub-Zero 632-2 - Model 601 RG-2

Sub-Zero 632-2
188 pages
Print Icon
To Next Page IconTo Next Page
To Next Page IconTo Next Page
To Previous Page IconTo Previous Page
To Previous Page IconTo Previous Page
Loading...
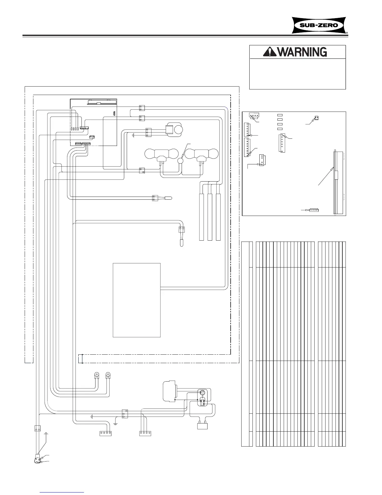
Wiring Diagrams / Schematics
Built-In
Built-In
(600-
(600-
2
2
)
)
Series
Series
GREEN
GREEN
RIBBED 2
PLAIN 1
POWER
SUPPLY
CORD
L1
L2
LIGHT
TERMINATOR
1 ORANGE
2 WHITE
ORANGE
ORANGE
REFRIGERATOR
LIGHTS
ORANGE
WHITE
1 PINK
2 WHITE
3 GREENGREEN
WHITE
RED
REFRIGERATOR
FAN MOTOR
CONDENSER
FAN MOTOR
OVERLOAD
PROTECTOR
COMPRESSOR
STARTING
RELAY
RUNNING
CAPACITOR
BLACK
BLACK
GREEN
GREEN
WHITE
GRAY
REF
FAN
SWITCH
REF
LIGHT
SWITCH
SENSOR
(REF EVAP)
BLUE W/WHITE STRIPE
BLUE W/WHITE STRIPE
SENSOR
(REF CABINET)
YELLOW
GRAY
WHITE
BLACK
ORANGE
WHITE
WHITE
RED
BLACK
GRAY
YELLOW
ORANGE
RED
WHITE
BLACK
GRAY
RED
WHITE
ORANGE
YELLOW
GREEN
WHITE
GRAY
WHITE
BLACK
ORANGE
YELLOW
RED
RED
PART NUMBER 3757370
ORANGE W/ YELLOW STRIPE
BLUE W/ YELLOW STRIPE
CONNECTOR
4321
GREEN
WHITE
GREEN
TAN WHITE
GRAY
GRAY
WHITE
RED
WHITE
ORANGE
CONTROL BOARD DETAIL
DISPLAY
ORANGE
GRAY
BLACK
4
CONNECTOR
BLUE W/ YELLOW STRIPE
ORANGE W/ YELLOW STRIPE
CONTROL BOARD
3
BLUE W/ YELLOW STRIPE
ORANGE W/ YELLOW STRIPE
WHITE
WHITE
RED
WHITE
PINK
ACCENT
LIGHTS
DOOR
HEATER
WHITE
BLUE BLUE
WHITE
WHITE
PINK
-This wiring information is provided for use by qualified
service personnel only.
-Disconnect appliance from electrical supply before
beginning service.
-Be sure all grounding devices are connected when
service is complete.
-Failure to observe the above warnings may result in
severe electrical shock.
DOOR HEATER
NOT USED
NOT USED
NOT USED
ACCENT LIGHTS
BLUE/WHITE
BLUE/WHITE
ORANGE/YLW
BLUE/YLW
LOW VOLTAGE THERMISTOR CIRCUITS
REF EVAP
NOT USED
NOT USED
REF COMPARTMENT
REF COMPARTMENT
REF EVAP
NOT USED
NOT USED(NO PIN)
NOT USED
REF DOOR LIGHT SENSE
NOT USED(NO PIN)
NOT USED
REF EVAP FAN
NOT USED
REF COMPRESSOR
LIGHTS
NEUTRAL
DESCRIPTION
POWER IN
120 VOLT CIRCUITS
NOT USED
J7-1 C FAN
DEF HTRE2
E6
E7
E10
CIRCUIT
R COMP
F COMP
L1
J7-5
J7-3
J7-2
J7-4
J4-1
J7-7
J7-6
J7-8
E FAN
LITES
J1-4
J4-5
J4-4
J4-3
J4-2
J1-3
J1-2
J1-1
J1-8
J1-7
J1-6
J1-5
CONTROL BOARD SUMMARY
SENSES REF CABINET TEMP
SENSES REF CABINET TEMP
SENSES REF EVAP TEMP
SENSES IF REF DOOR OPEN
POWERS LIGHTS
POWER INTO BOARD
NEUTRAL INTO BOARD
FUNCTION COLOR
BLACK
YELLOW
ORANGE
WHITE
PIN 1
0
J6
0
0
PIN 1
PIN 1
PIN 1
PIN 1
J1
J4
0
J7
J2
PIN 1
PIN 1
0
J3
0
E6
E10
E7
E2
J5
0
SENSES REF EVAP TEMP
NOT USED
J1
J6
J7
J2
E2
E10
E6
E7
J4
POWERS REF COMPRESSOR AND CONDENSER FAN
GRAY
POWERS DOOR HEATER
ICE
POWERS REF EVAP FAN
BLUE
RED
PINK
NEU
WIRING DIAGRAM
MODEL 601RG-2
10-4
#3758407 - Revision B - August, 2006

Table of Contents

Other manuals for Sub-Zero 632-2

Related product manuals