EasyManua.ls Logo

Sub-Zero 632-2 - Page 174

Sub-Zero 632-2
188 pages
Print Icon
To Next Page IconTo Next Page
To Next Page IconTo Next Page
To Previous Page IconTo Previous Page
To Previous Page IconTo Previous Page
Loading...
Wiring Diagrams / Schematics
Built-In
Built-In
(600-
(600-
2
2
)
)
Series
Series
GREEN
ICEMAKER
WATER VALVE
WHITE
TAN
GREEN
RIBBED 2
PLAIN 1
POWER
SUPPLY
CORD
L1
L2
LIGHT
TERMINATOR
1 ORANGE
2 WHITE
ORANGE
ORANGE
FREEZER
LIGHTS
ORANGE
WHITE
1 PINK
2 WHITE
3 GREENGREEN
WHITE
RED
FREEZER
FAN MOTOR
CONDENSER
FAN MOTOR
OVERLOAD
PROTECTOR
COMPRESSOR
STARTING
RELAY
RUNNING
CAPACITOR
BLACK
BLACK
GREEN
GREEN
WHITE
PURPLE
FREEZER
FAN
SWITCH
FREEZER
LIGHT
SWITCH
DEFROST
TERMINATOR
GRAY 2
BLUE 1
DEFROST HEATER
SENSOR
(FRE EVAP)
WHITE 2
GRAY 1
BLUE W/BLACK STRIPE
BLUE W/BLACK STRIPE
SENSOR
(FRE CABINET)
DRAIN TROUGH HEATER
FILL
TUBE
HEATER
WHITE 2
BLUE 1
DRAIN HEATER
3 BLUE
5 TAN
4 PINK
2 WHITE
1 WHITE W/BLUE STRIPE
ICEMAKER
SWITCH
ICEMAKER
1 GREEN
2 TAN
3 PINK
4 WHITE
WHITE 2
BLUE 1
TAN
1
6
WHITE W/BLUE STRIPE
YELLOW
PURPLE
PINK
7
3
5
2
4
WHITE8
BLUE
BLACK
ORANGE
WHITE
WHITE
WHITE
RED
BLUE
GRAY W/WHITE STRIPE
GRAY W/WHITE STRIPE
GRAY W/WHITE
BLACK
WHITE W/BLUE STRIPE
TAN
PINK
BLUE
PURPLE
YELLOW
ORANGE
RED
WHITE
BLUE W/BLACK
BLUE W/BLACK
BLACK
PURPLE
TAN
RED
WHITE
ORANGE
YELLOW
PINK
TAN
WHITE
WHITE
WHITE W/BLUE STRIPE
GREEN
WHITE W/BLUE STRIPE 1
WHITE 2
WHITE
BLUE
WHITE
BLUE
WHITE
GREEN
WHITE
PURPLE
WHITE
BLACK
ORANGE
YELLOW
RED
PURPLE
PART NUMBER 3756690
ORANGE W/ RED STRIPE
BLUE W/ RED STRIPE
CONNECTOR
4321
GREEN
WHITE
GREEN
TAN WHITE
PURPLE
PURPLE
WHITE
BLUE
RED
WHITE
ORANGE
4
CONTROL BOARD DETAIL
DISPLAY
ORANGE
GRAY W/WHITE
BLUE
PURPLE
BLACK
12
CONNECTOR
BLUE W/ RED STRIPE
ORANGE W/ RED STRIPE
CONTROL BOARD
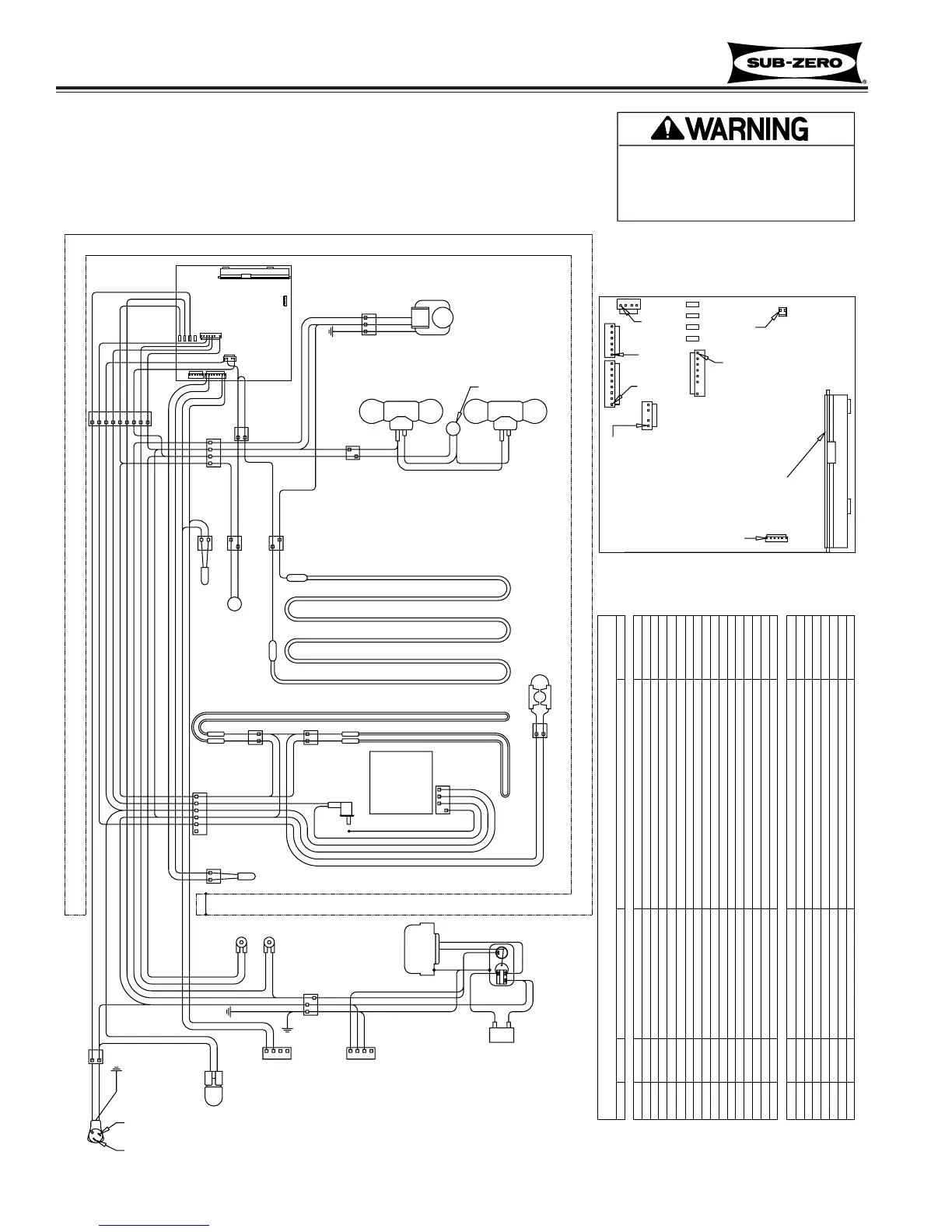
-This wiring information is provided for use by qualified
service personnel only.
-Disconnect appliance from electrical supply before
beginning service.
-Be sure all grounding devices are connected when
service is complete.
-Failure to observe the above warnings may result in
severe electrical shock.
DEFROST HEATER
ICE MAKER VALVE SENSOR
DEF SENSOR
ICE MAKER ACC (FILL TUBE)
ICE MAKER POWERS ICE MAKER
SENSES WATER VALVE ACTIVATION
SENSES WHEN DEF HEATER SHUTS OFF
POWERS FILL TUBE HEATER AND ACCESSORIES
POWERS DEFROST CIRCUIT
WHITE/BLUE
GRAY/WHITE
TAN
BLUE
PINK
BLUE/BLACK
BLUE/BLACK
ORANGE/RED
BLUE/RED
LOW VOLTAGE THERMISTOR CIRCUITS
NOT USED
FRZ COMPARTMENT
FRZ COMPARTMENT
NOT USED
NOT USED
NOT USED
FRZ EVAP
NOT USED(NO PIN)
NOT USED
FRZ DOOR LIGHT SENSE
NOT USED(NO PIN)
NOT USED
NOT USED
NOT USED
NOT USED
LIGHTS
NEUTRAL
DESCRIPTION
POWER IN
120 VOLT CIRCUITS
FRZ COMPRESSOR
J7-1 C FAN
DEF HTRE2
E6
E7
E10
CIRCUIT
RCOMP
FCOMP
L1
J7-5
J7-3
J7-2
J7-4
J4-1
J7-7
J7-6
J7-8
E FAN
LITES
NEU
J1-4
J4-5
J4-4
J4-3
J4-2
J1-3
J1-2
J1-1
J1-8
J1-7
J1-6
J1-5
CONTROL BOARD SUMMARY
SENSES FRZ CABINET TEMP
SENSES FRZ CABINET TEMP
SENSES FRZ EVAP TEMP
SENSES IF FRZ DOOR OPEN
POWERS LIGHTS
POWERS FRZ COMPRESSOR AND CONDENSER FAN
POWER INTO BOARD
NEUTRAL INTO BOARD
FUNCTION COLOR
PURPLE
BLACK
YELLOW
ORANGE
WHITE
PIN 1
0
J6
0
0
PIN 1
PIN 1
PIN 1
PIN 1
J1
J4
0
J7
J2
PIN 1
PIN 1
0
J3
0
E6
E10
E7
E2
J5
0
SENSES FRZ EVAP TEMP
FRZ EVAP
J1
J6
J7
J2
E2
E10
E6
E7
J4
WIRING DIAGRAM
MODEL: 601F-2
10-6
#3758407 - Revision B - August, 2006

Table of Contents

Other manuals for Sub-Zero 632-2

Related product manuals