EasyManua.ls Logo

Sub-Zero 632-2 - Page 31

Sub-Zero 632-2
188 pages
Print Icon
To Next Page IconTo Next Page
To Next Page IconTo Next Page
To Previous Page IconTo Previous Page
To Previous Page IconTo Previous Page
Loading...
Built-In
Built-In
(600-
(600-
2
2
)
)
Series
Series
Electronic Control System
3-11
#3758407 - Revision B - August, 2006
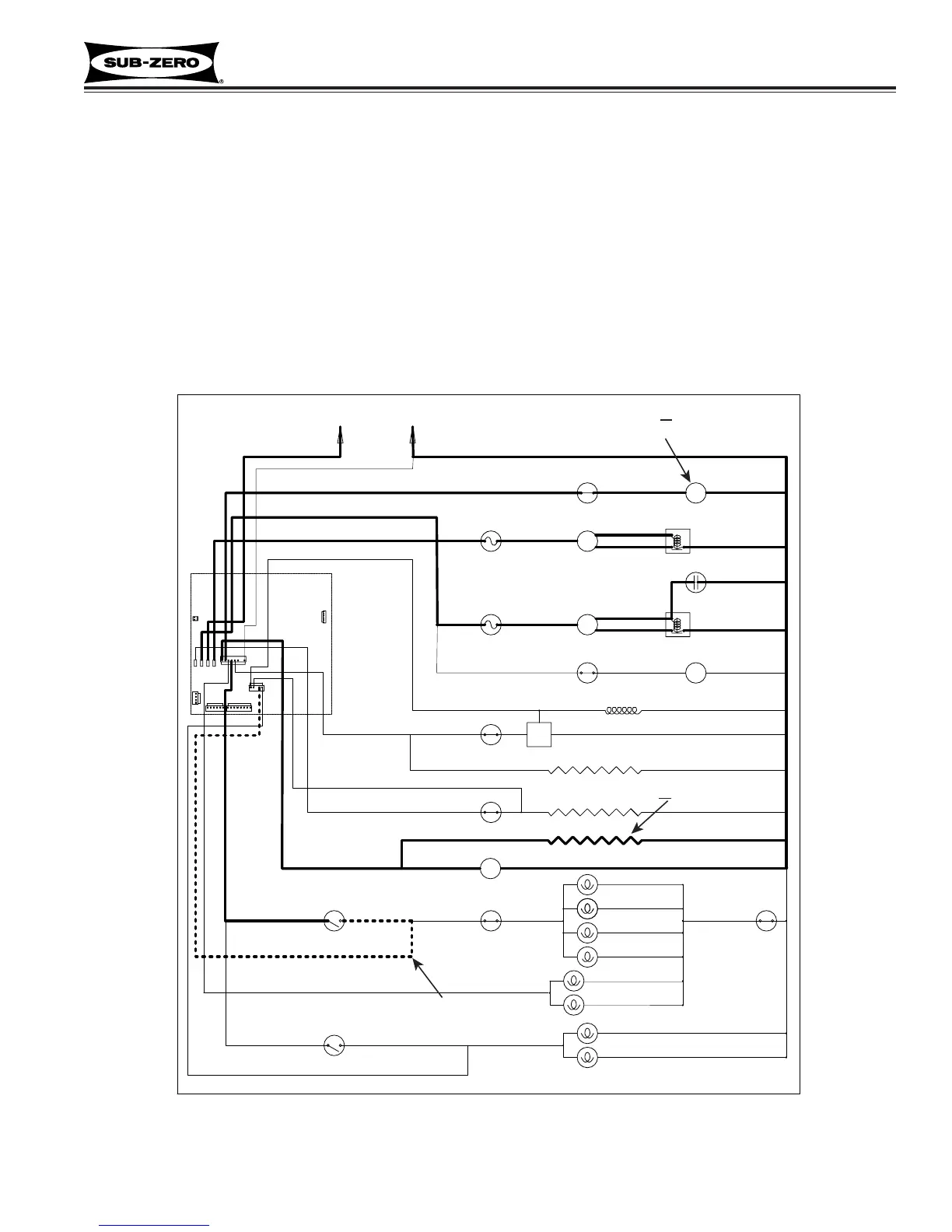
Minimize Condensation on Refrigerator Door Glass (Models Produced with Glass Doors Only)
On models produced with glass doors, the refrigerator door is equipped with a 5 watt braided wire heater around the
glass perimeter to help minimize condensation formation on the glass.
The heater in a 601RG door is on 100%.
The heater in 611G-2 and 650G-2 doors is tied into the condenser fan circuit (see Control Condenser Fan
Operation on preceding page and Figure 3-14 below).
To help minimize condensation on the glass further, the microprocessor detects when the refrigerator door is
opened, via the light switch, then when the door closes, the evaporator fan is energized for 5 minutes. This draws
any warmer moist air away from the door glass. (See Figure 3-14)
NOTE: The evaporator fan in these models also cycles with the compressor.
Figure 3-14. Signal Trace Schematic of 611G-2/650G-2 Door Heater & Evaporator Fan Operation
RED
WHITE/RED
M
M
PURPLE
GRAY
BLACK
WHITE
RED
L1
M
NEUT
WHITE
M
M
DOOR HEATER
2300-3000 Ohms
WHITE/RED
CONDENSER
FAN MOTOR
FREEZER
OVERLOAD
PROTECTOR
J3
J2
E10E2 E7 E6
J4
J1
J7
J5
REFRIGERATOR
OVERLOAD
PROTECTOR
J6
115 VOLTS
60 CYCLES
FREEZER
COMPRESSOR
RUNNING
CAPACITOR
FREEZER
COMPRESSOR
STARTING
RELAY
REFRIGERATOR
FAN SWITCH
REFRIGERATOR
COMPRESSOR
REFRIGERATOR
FAN MOTOR
REFRIGERATOR
COMPRESSOR
STARTING
RELAY
ORANGE
ORANGE
YELLOW
REFRIGERATOR
LIGHT SWITCH
LIGHT
TERMINATOR
REFRIGERATOR
LIGHTS
LIGHT
TERMINATOR
1.) 5 watt door heater on with condenser fan.
3.) Evaporator fan on for 5 minutes even
if compressor is not energized.
2.) When door is opened then closed,
mocroprocessor senses light
switch operation.

Table of Contents

Other manuals for Sub-Zero 632-2

Related product manuals