EasyManua.ls Logo

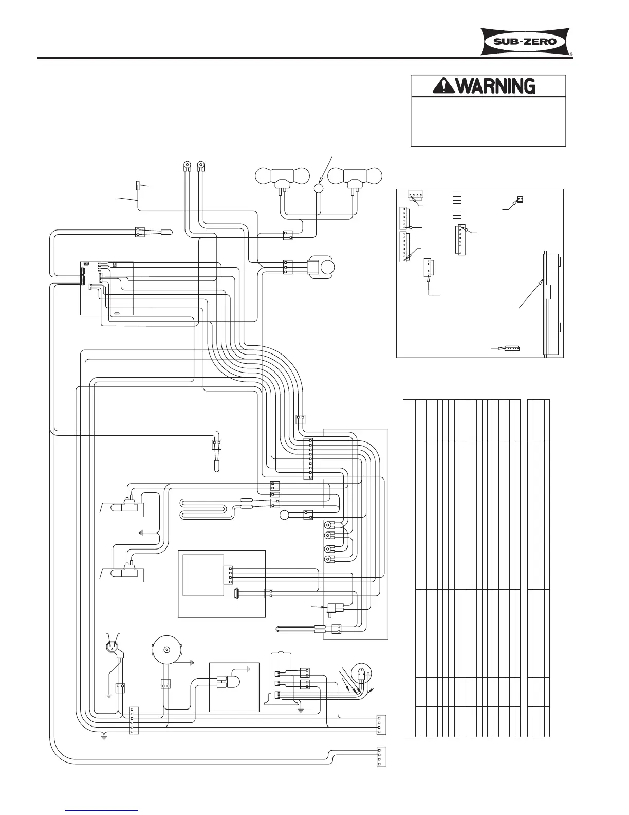
Sub-Zero 700TCI-3 - WIRING DIAGRAM MODEL: 700 TF;I-3

Sub-Zero 700TCI-3
136 pages
Print Icon
To Next Page IconTo Next Page
To Next Page IconTo Next Page
To Previous Page IconTo Previous Page
To Previous Page IconTo Previous Page
Loading...
Wiring Diagrams/Schematics
Integrated
Integrated
(700-
(700-
3
3
T
T
ALL)
ALL)
Series
Series
10-6
#3758412 - Revision B - December, 2006
0
0
0
0
0
0
0
DEFROST HEATER
ICE MAKER VALVE SENSOR
DEFROST HEATER SENSOR
ICE MAKER ACC (FILL TUBE)
ICE MAKER
POWERS ICE MAKER
SENSES IF WATER VALVE IS ON OR OFF
SENSES IF DEFROST HEATER IS ON OR OFF
POWERS FILL TUBE HEATER AND ACCESSORIES
POWERS DEFROST CIRCUIT
WHITE/BLUE
GRAY/WHITE
TAN
BLUE
PINK
BLUE/RED
ORANGE/RED
WHITE/RED
LOW VOLTAGE CIRCUITS
NOT USED
EVAP SENSOR
EVAP SENSOR
NOT USED(NO PIN)
DOOR LIGHTS SENSE
DRAWER LIGHTS SENSE
NOT USED(NO PIN)
NOT USED
NOT USED
NOT USED
LIGHTS
NEUTRAL
DESCRIPTION
POWER IN
120 VOLT CIRCUITS
COMPRESSOR
J7-1
DEF HTRE2
E6
E7
E10
CIRCUIT
FCOMP
L1
J7-5
J7-3
J7-2
J7-4
J4-1
J7-7
J7-6
J7-8
LITES
NEU
J4-5
J4-4
J4-3
J4-2
J1-2
J1-1
CONTROL BOARD SUMMARY
SENSES FRZ EVAP TEMP
SENSES FRZ EVAP TEMP
SENSES IF DOOR OPEN
SENSES IF EITHER DRAWER OPEN
POWERS LIGHTS
POWERS COMPRESSOR
POWER INTO BOARD
NEUTRAL INTO BOARD
FUNCTION COLOR
GRAY
PURPLE
BLACK
YELLOW
ORANGE
WHITE
ORANGE
NOT USED
IACC
ICE
F DR
R DR
EVAP FRZ
EVAP FRZ
J1-3 THRU 6
BLUE/BLACK
CABINET SENSOR
SENSES FRZ CABINET TEMP
FRZ
J1-7 & 8
-This wiring information is provided for use by qualified
service personnel only.
-Disconnect appliance from electrical supply before
beginning service.
-Be sure all grounding devices are connected when
service is complete.
-Failure to observe the above warnings may result in
severe electrical shock.
E7
6
3
1
2
1
2
1
1
2
4
L1 L2
BLUE W/ RED STRIPE
ORANGE W/ RED STRIPE
J6
J1
J4
J7
J2
J3
E6
E10
E7
E2
J5
WHITE
BLUE1
2
BLACK
BLACK
4 PINK
3 WHITE
1 GREEN
2 TAN
WHITE W/ BLUE
WHITE2
1
WHITE W/ BLUE STRIPE
TAN
PINK
BLUE
WHITE
PURPLE
LIGHT SW
PURPLE
PURPLE
BLUE W/ RED STRIPE
ORANGE W/ RED STRIPE
GREEN
WHITE
BLACK
WHITE 2
PURPLE
3 GREEN
WHITE
BLACK
12
GREEN
PLAIN
RIBBED
WHITE 2
PURPLE 1
GREEN 3
BLACK
BLACK
GREEN
WHITE
5 TAN
TAN
PURPLE
GREEN
FAN SW
GREEN
TAN
2 WHITE
PURPLE 1
WHITE
LIGHT SW
FAN SW
WHITE
ORANGE
GREEN
BROWN
LT. BLUE
BLACK
GREEN
W/YELLOW
? BLACK
BLACK
DEFROST
TERMINATOR
WHITE
1 WHITE W/BLUE
YELLOW
ORANGE
SWITCH BOX
9 TAN
7 PINK
5 BLUE
8 YELLOW
2 WHITE
4 ORANGE
3 GREEN
2 WHITE
1 GRAY W/WHITE
2 WHITE
BLACK
BLACK
1
2
3
ORANGE
WHITE
PURPLE
RED
YELLOW
ORANGE
1 PURPLE
2 PURPLE
1 BLUE
2 GRAY/WHITE
GRAY W/WHITE
1 ORANGE
WHITE W/BLUE
TAN
PINK
BLUE
YELLOW
WHITE
ORANGE
ORANGE
WHITE
ORANGE
GREEN
WHITE W/BLUE STRIPE
PURPLE
TAN
PINK
BLUE
ORANGE
YELLOW
GRAY W/WHITE STRIPE
BLACK
WHITE
ORANGE
J6
J5
J4
J1
J2
E10
E6
J7
J3
E2
GRAY W/ WHITE STRIPE
ORANGE W/ RED STRIPE
BLUE W/ RED STRIPE
GREEN
WHITE
RED
WHITE
GREEN
BLACK
PURPLE
TAN
GREEN
WHITE
BLUE W/ RED STRIPE
ORANGE W/ RED STRIPE
ORANGE 1
WHITE 2
PURPLE
GREEN
WHITE
BLACK
TAN
BLUE W/ BLACK STRIPE
BLUE W/ BLACK STRIPE
ORANGE
GREEN
ICE MAKER
SWITCH
DRAIN TROUGH HEATER
FRZ VAR SPEED
COMPRESSOR
HEATSHRINK
THIS WIRE ONLY
USED WITH SABBATH
MODE ACCESSORY
UPPER LIGHT
SWITCH
FAN
SWITCH
UPPER DRAWER LIGHT
LOWER DRAWER LIGHT
CONTROL BOARD
P/N 3758594 REV B
UPPER
LIGHTS
ICEMAKER
(OPTIONAL)
FILL TUBE
HEATER
FAN MOTOR
EVAP
LIGHT
TERMINATOR
DEFROST HEATER
SUPPLY
CORD
POWER
MFG TEST
TERMINALS
CONDENSER
FAN MOTOR
(OPTIONAL)
SOLENOID
ICEMAKER
CONTROL BOARD DETAIL
DISPLAY
SENSOR
(EVAP)
SENSOR
(CABINET)
V SPEED
CONTROL BOX
WIRING DIAGRAM
MODEL: 700 TF/I-3
PIN 1
PIN 1
PIN 1
PIN 1
PIN 1
PIN 1
PIN 1

Table of Contents

Related product manuals