EasyManua.ls Logo

SubGear xp-3h - Comparison of Dives with MB Level L0 and MB Level L5; Terminology; Display During MB No-Stop Phase

SubGear xp-3h
79 pages
Print Icon
To Next Page IconTo Next Page
To Next Page IconTo Next Page
To Previous Page IconTo Previous Page
To Previous Page IconTo Previous Page
Loading...
35
ENGLISH
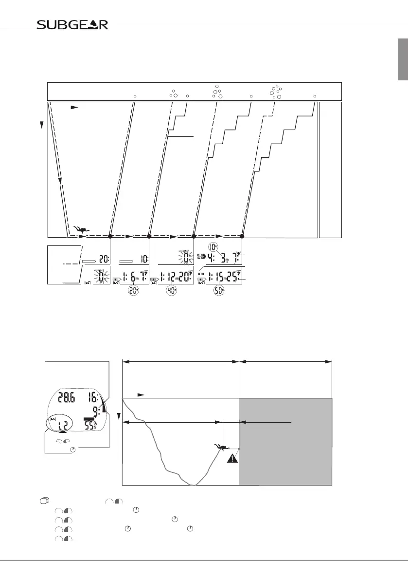
4.8.1 Comparison of dives with MB level L0 and MB level L5
When two Subgear XP-3H are used simultaneously, one unit is set for example to MB level L5, the
other to L0, the no-stop time will be shortened and level stops will be required before the diver has
the obligation of a decompression stop. These additional level stops help dissipate the microbubbles.
NO STOP
3m/10ft
6m/20ft
9m/30ft
12m/40ft
15m/50ft
Depth
Stop depth
MB level
L0
L5
NO STOPNO STOP
STOP
STOP
STOP
DECO
STOP
DECO
NO STOP
Microbubble accumulation
at the end of dive
Time
L0
L5
Decompression values
Level stop values
Decompression obligation
4.8.2 Terminology
This chapter will exclusively deal with terminology and display features used while diving with MB levels.
Display during MB no-stop phase
16min Dive time MB no-stop time
9min
Current depth
Max depth
35.7m
Level stop phase
MB no-stop phase
Dive phase during which surfacing is
possible without MB level stop.
Time
Depth
MB level
activated
Level L2
is active
Nitrogen
loading bar
relative to LO
MB no-stop time
Remaining time at a
respective depth allowing
ascent without level stop.
NO
CNS O
2
%
2 x
DEPTH
DEPTH
NO STOP
NO STOP
DIVE TIME
DIVE TIME
(Tank pressure >) Temperature
> MB level active
> No-stop time relative to L0
> Temperature and time of day
> (Tank pressure)…
Diving with microbubble (MB) levels

Table of Contents