EasyManua.ls Logo

Sullair 1600H - ID, Without Running Gear

Sullair 1600H
74 pages
To Next Page IconTo Next Page
To Next Page IconTo Next Page
To Previous Page IconTo Previous Page
To Previous Page IconTo Previous Page
Loading...
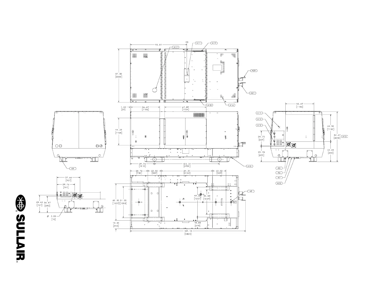
1600C LP USER MANUAL SECTION 3
50
3.9 ID, WITHOUT RUNNING GEAR
02250175-075-r01

Other manuals for Sullair 1600H

Related product manuals