EasyManua.ls Logo

Superior DRT3040 - Vent Termination Clearances

Superior DRT3040
74 pages
Print Icon
To Next Page IconTo Next Page
To Next Page IconTo Next Page
To Previous Page IconTo Previous Page
To Previous Page IconTo Previous Page
Loading...
Installation
900285-00 11/2014
Innovative Hearth Products
Superior
TM
DRT3000 Series Direct-Vent Gas Fireplaces
12
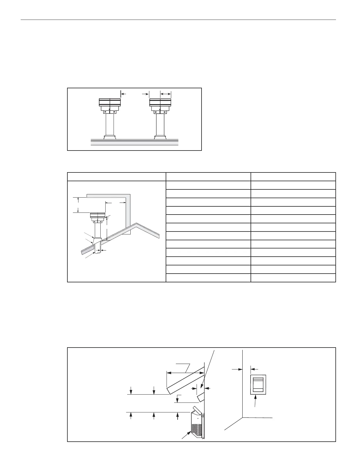
VENT TERMINATION CLEARANCES
These instructions should be used as a guideline and do not supersede local codes in any way. Install venting
according to local codes, these instructions, the current National Fuel Gas Code (ANSI Z223.1/NFPA 54) in the USA or
the current standards of CAN/CGA-B149.1 in Canada.
Vertical Vent Termination Clearances
Terminate multiple vent terminations according to the installation codes listed above and Figure 4.
Figure 4: Multiple Terminations
12”
(305 mm)
minimum
Terminate single vent caps relative to building components according to Table 6 and Figure 4.
Table 6: Termination Heights for Vents above Flat or Sloped Roofs (NFPA 54 / ANSI Z223.1)—Gas Vent Rule
Roof Pitch Termination Height *
12
X
Roof pitch is X/12
2 ft
minimum
2 ft minimum
Lowest
discharge
opening
H*
*H = minimum height from roof to
lowest discharge opening of vent
Horizontal overhang
Vertical
wall
Vent
termination
Storm collar
Concentric
vent pipe
Flashing
1” (25.4 mm) minimum
clearance to combustibles
Flat to 6/12 1.0 ft (0.3 m)
6/12 to 7/12 1.25 ft (0.38 m)
7/12 to 8/12 1.5 ft (0.46 m)
8/12 to 9/12 2.0 ft (0.61 m)
9/12 to 10/12 2.5 ft (0.76 m)
10/12 to 11/12 3.25 ft (0.99 m)
11/12 to 12/12 4.0 ft (1.22 m)
12/12 to 14/12 5.0 ft (1.52 m)
14/12 to 16/12 6.0 ft (1.83 m)
16/12 to 18/12 7.0 ft (2.13 m)
18/12 to 20/12 7.5 ft (2.29 m)
20/12 to 21/12 8.0 ft (2.44 m)
Horizontal Vent Termination Clearances
The horizontal vent termination must have a minimum of 6” (152 mm) clearance to any overhead combustible
projection of 2 1/2” (64 mm) or less (Figure 5). For projections exceeding 2 1/2” (64 mm) (Figure 5). For additional
vent location restrictions refer to Table 7.
All horizontal terminations may be located as close as 6” (152mm) to any (non-combustible and combustible)
exterior sidewall. This distance may be decreased to 2” (51mm) for noncombustible exterior sidewalls with all
approved terminations (Table 21).
Figure 5: Horizontal Vent Termination Clearances
Combustible projection
2 1/2” or less in length
Combustible projection
greater than 2 1/2” in length
Ventilated
soffit - 18”
(457 mm)
Unventilated
soffit - 12”
(305 mm)
6
(152)
Termination kit
Termination kit**
6”
**Use 6.5”
from center of
termination for
all horzontal
terminations
applicable
6”
(153 mm)
*
*10” to center of termination for H1968

Related product manuals