EasyManua.ls Logo

Superior DRT3040 - Minimum Clearances to Combustibles

Superior DRT3040
74 pages
Print Icon
To Next Page IconTo Next Page
To Next Page IconTo Next Page
To Previous Page IconTo Previous Page
To Previous Page IconTo Previous Page
Loading...
Installation
900285-00 11/2014
Innovative Hearth Products
Superior
TM
DRT3000 Series Direct-Vent Gas Fireplaces
14
MINIMUM CLEARANCES TO COMBUSTIBLES
Fireplace And Vent Clearances
The fireplace is approved with zero clearance to combustible materials on all sides (Table 8), with the following
exception: The unit may not be recessed (allowance made for mantel legs / side trim in Figure 6). When the unit is
installed with one side flush with a wall, the wall on the other side of the unit must not extend beyond the front edge
of the unit (Figure 6).
Table 8: Minimum Clearances *
Back
1” (26mm) to wrapper
0” (0 mm) to Spacers
Sides
1/2” (13 mm) to wrapper
0” (0 mm) to Spacers **
Top Standoffs
0” (0 mm) to top standoffs
Floor
0” (0 mm)
From Bottom of Unit to Ceiling
64” (1626 mm)
Vent
3” (76 mm)—Top *
1” (25.4 mm)—Sides and Bottom
Front Service Clearance—
clearance immediately in front of viewing area(s)
36” (914 mm)
* 3” (76 mm) above any horizontal/inclined vent component.
** See Page 20 for clearance requirements to the nailing flange located at each side of the unit and any screw heads adjacent to it.
The fireplace must be mounted on a fully supported base extending the full width and depth of the unit. The fireplace
may be located on or near conventional construction materials. However, if installed on combustible materials, such
as carpeting, vinyl tile or other combustible material other than wood flooring, the appliance shall be installed on a
metal or wood panel extending the full width and depth of the appliance.
Hearth Extension
A hearth extension is not required with this fireplace. If a hearth extension is used, do not block the lower control
compartment door. Any hearth extension used is for appearance only and does not have to conform to standard
hearth extension installation requirements.
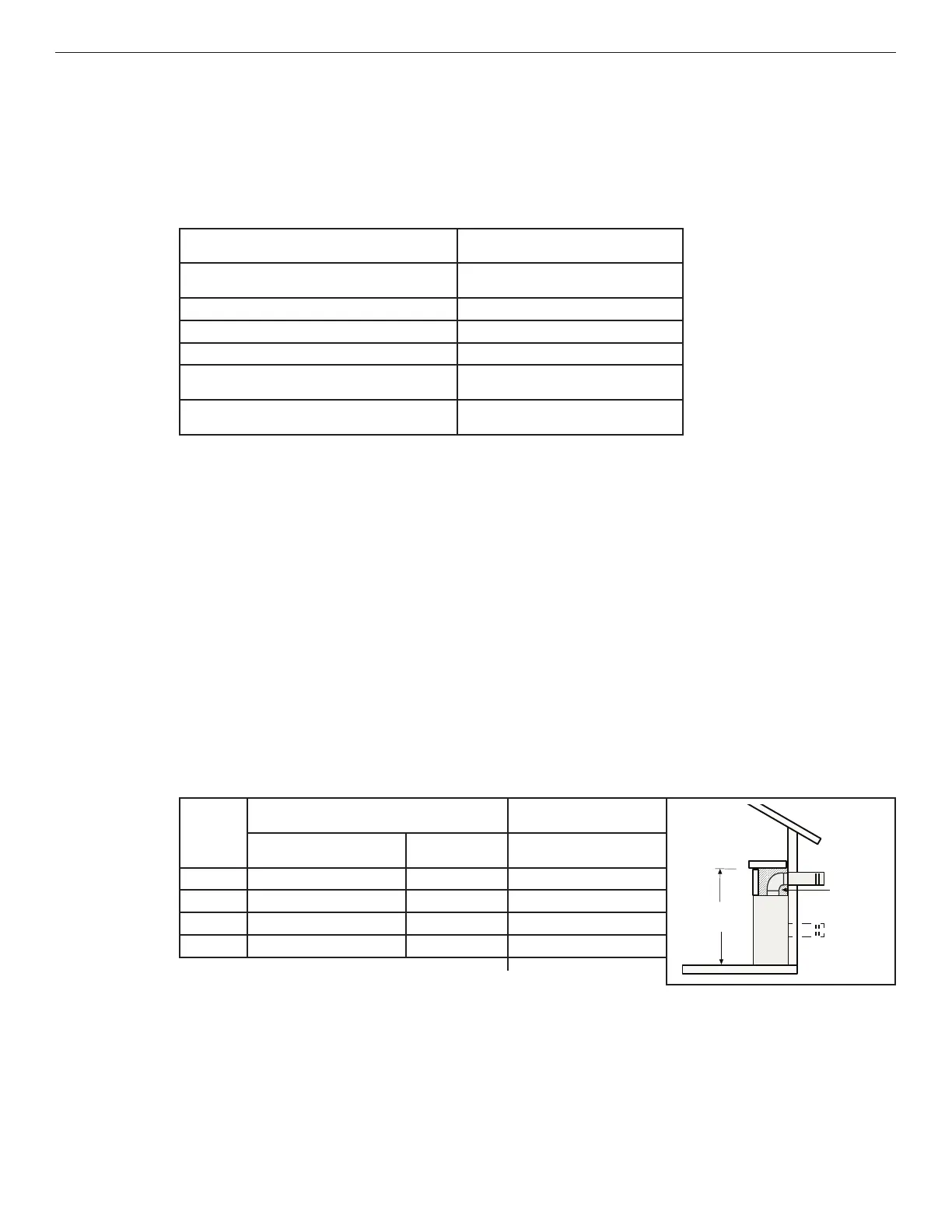
Shelf Height
To provide for the lowest possible shelf surface, use the rear vent model. For top vent models, the venting attached
to the top vent should be routed in a way to minimize obstructions to the space above the fireplace. Do not insulate
the space between the fireplace and the area above it (Table 9 and Table 10). The minimum height from the base
of the fireplace to the underside of combustible materials used to construct a utility shelf in this fashion is shown in
Table 9 and Table 10.
Table 9: Combustible Shelf Height—Top Vent
Model
Top Vent with one 90° Elbow
Alternative Rear Vent
applications*
Shelf Height
(see table)
No com-
bustibles or
insulation
in the
shaded area
between the
appliance
and the
shelf
above it.
Secure Vent
®
Secure Flex
®
(flex elbow)
Secure Vent
®
33” Models 44” (1118 mm) 46” (1168 mm) 39” (990 mm)
35” Models 47” (1194 mm) 49” (1245 mm) 41” (1042 mm)
40” Models 52” (1321 mm) 54” (1372 mm) 46” (1169 mm)
45” Models 52” (1321 mm) 54” (1372 mm) 46” (1169 mm)
*
*In alternative, Rear Vent applications, Top Vent will be sealed as detailed in Installation
Sequence Step 3.5.

Related product manuals