EasyManua.ls Logo

TCL iQool-C2MS12K12K - Electrical Wiring Diagrams

TCL iQool-C2MS12K12K
48 pages
Print Icon
To Next Page IconTo Next Page
To Next Page IconTo Next Page
To Previous Page IconTo Previous Page
To Previous Page IconTo Previous Page
Loading...
40
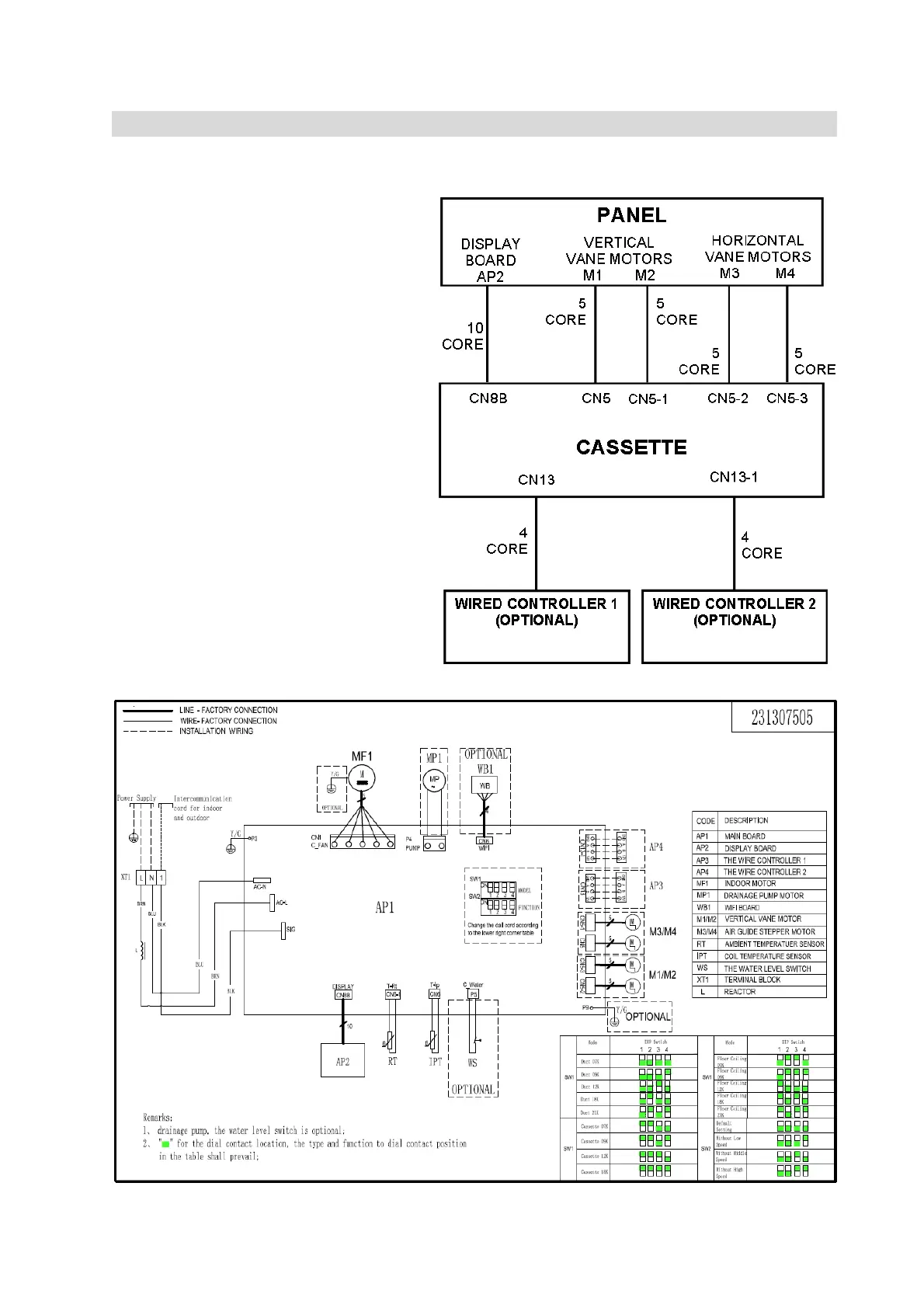
ELECTRICAL WIRING DIAGRAMS
Please note: The diagrams provided in the manual are for guidance only. Due to continual product development the
diagrams provided on the units themselves should be followed where any discrepancies are found
Connection of Panel to the
Cassette
Indoor PCB

Related product manuals