EasyManua.ls Logo

TECO SG2-10HR-A - Page 230

TECO SG2-10HR-A
270 pages
To Next Page IconTo Next Page
To Next Page IconTo Next Page
To Previous Page IconTo Previous Page
To Previous Page IconTo Previous Page
Loading...
Chapter 9 Expansion Module 222
4) Transistor output
++
-
SG2-8ET-D
+
OUTPUT 4 x TR/0.5A
-
+
-
-
Y1 Y2
Y3 Y4
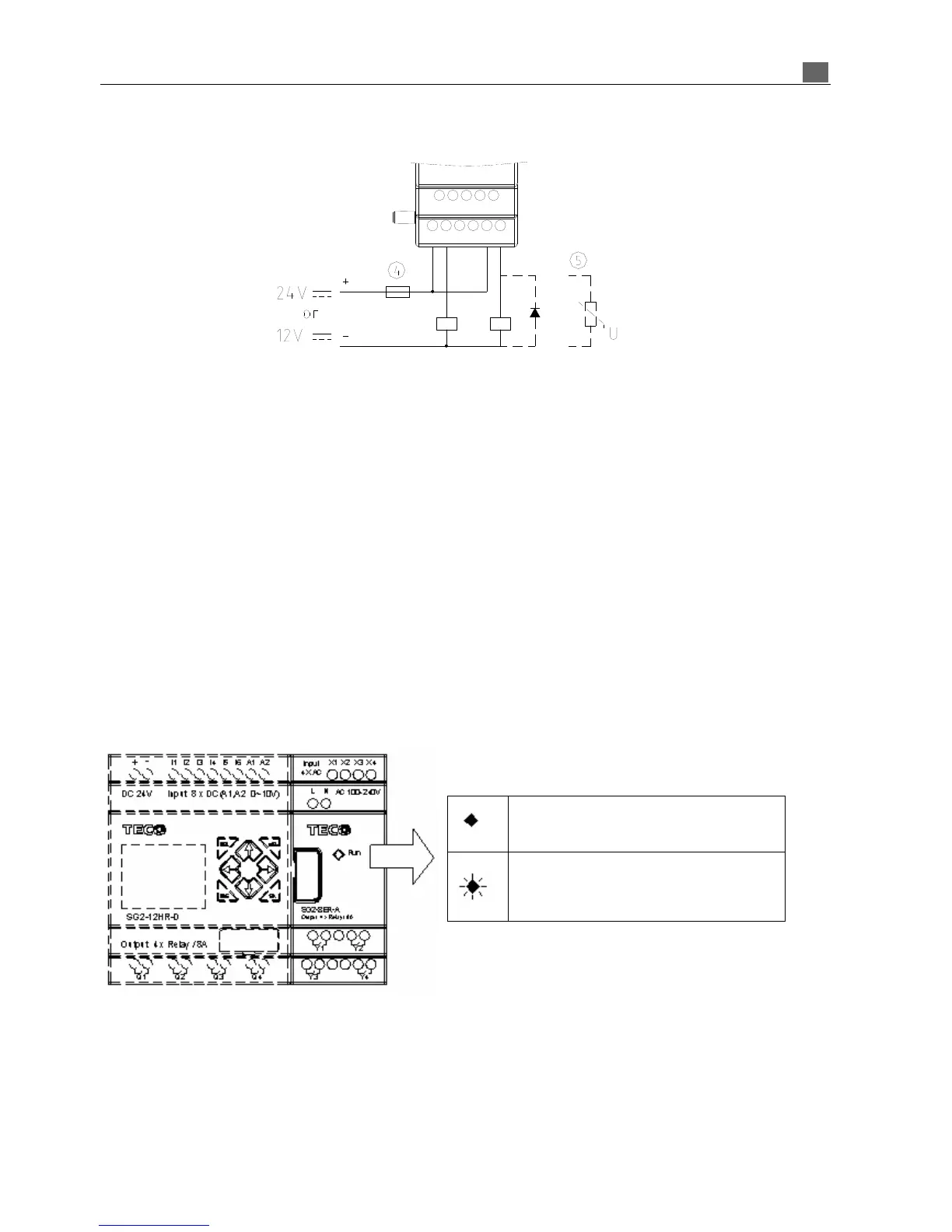
-1A quick-blowing fuse, circuit-breaker or circuit protector
-Surge absorber (43V DC)
-Surge absorber (Input 24VAC:43V; Input 100~240VAC:430V AC)
-Fuse, circuit-breaker or circuit protector
-Inductive load
AC inductive load needs to connect Surge absorber in parallel way to absorb the noise if the SG2 output
terminal is the relay type. DC inductive load needs parallel connect commute diode if the SG2 output terminal is
the relay type. The specification of inverse voltage for commute diode should be more than 5~10 times the rated
current of the circuit, and the specification of positive current of diode should be more than load current.
Inductive load needs parallel connect commute diode if the SG2 output is transistor.
Digital IO module and Analog module both have indicator light in orange color. The state of indicator light in
different operation state is the same. The state of indicator light is shown below.
Running status of expansion module
Flick (3Hz), expansion module is fault
data transfer error
connecting is error with module before
PDF compression, OCR, web optimization using a watermarked evaluation copy of CVISION PDFCompressor

Table of Contents

Related product manuals