EasyManua.ls Logo

Teknic ClearPath-SCSK Series - Mounting Dimensions: SC Hub

Teknic ClearPath-SCSK Series
117 pages
To Next Page IconTo Next Page
To Next Page IconTo Next Page
To Previous Page IconTo Previous Page
To Previous Page IconTo Previous Page
Loading...
C
LEAR
P
ATH
-SC
U
SER
M
ANUAL
R
EV
.
1.36
92
T
EKNIC
,
I
NC
. T
EL
.
(585)
784-7454
M
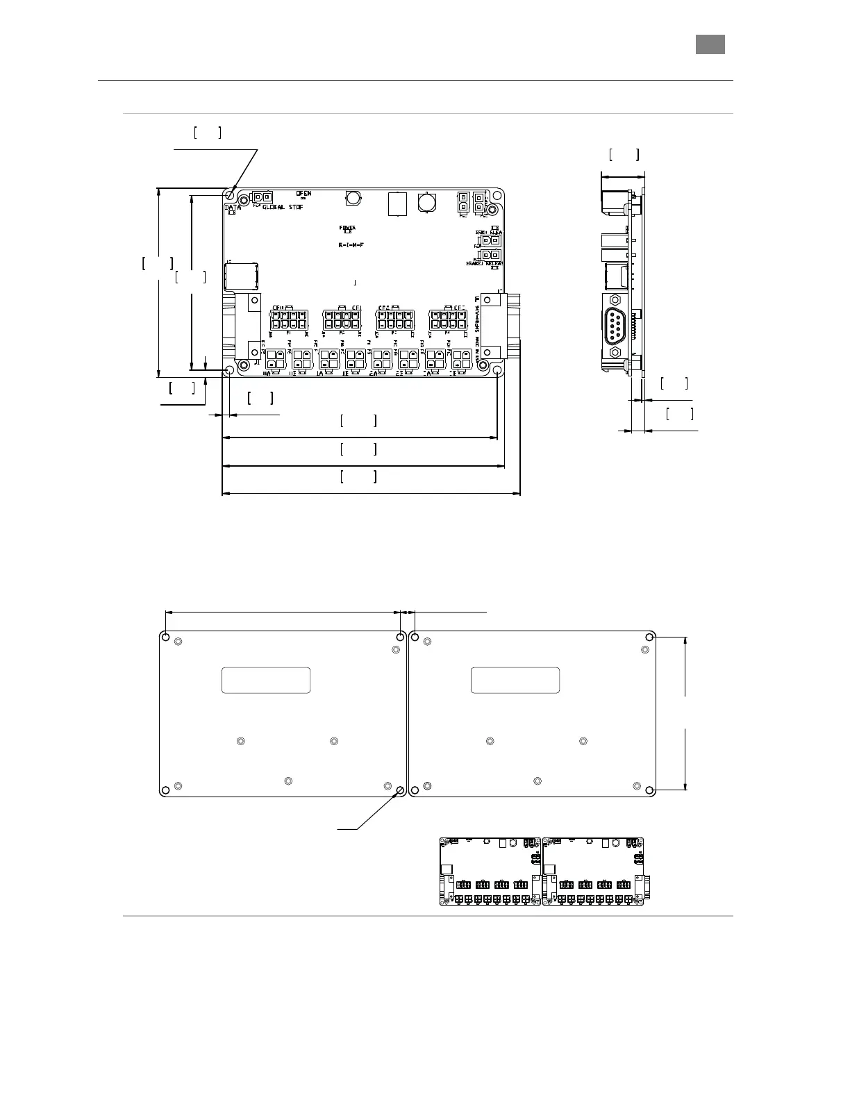
OUNTING
D
IMENSIONS
:
SC
H
UB
83.41
3.284
90.42
3.560
3.51
0.138
3.51
0.138
131.37
5.172
134.87
5.310
142.33
5.603
4x
3.94
Ø 0.155
THRU
1.55
0.061
6.35
0.250
20.65
0.813
EAW ALW TLW JBL JMW MW LWJWW
4x
[ 127. 86]
5.034
4x
[ 83.41 ]
3.284
2x
[ 8.03 ]
0.316
8x
[ 3.94 ]
Ø 0.155 THRU
SC Hub Mounting Plate SC Hub Mounting Plate
Mounting pattern for chaining multiple SC Hubs
end-to-end using onboard DB-9 connectors.
SC Hub Mounting DImensions
SC Hub Mounting Dimensions

Table of Contents

Related product manuals