EasyManua.ls Logo

Tektronix 2467B - Page 38

Tektronix 2467B
536 pages
Print Icon
To Next Page IconTo Next Page
To Next Page IconTo Next Page
To Previous Page IconTo Previous Page
To Previous Page IconTo Previous Page
Loading...
Specification—2465B/2467B Service
5.94 '
6.29
[151]
p~c
i.160]
| |
i
i...-^
i
13.31
"338]
y
IQI
im^p-
11.52
[293]
16.60
[422]
21.00
[533[
18.59
[472]
18.35
[466]
T
T
1
5.80
5.53
r
147
l
6.47
[141] , [164]
10.78
[274]
11.90
[302]
11.63
[296]
Dimensions are in inches [mm
6019-02
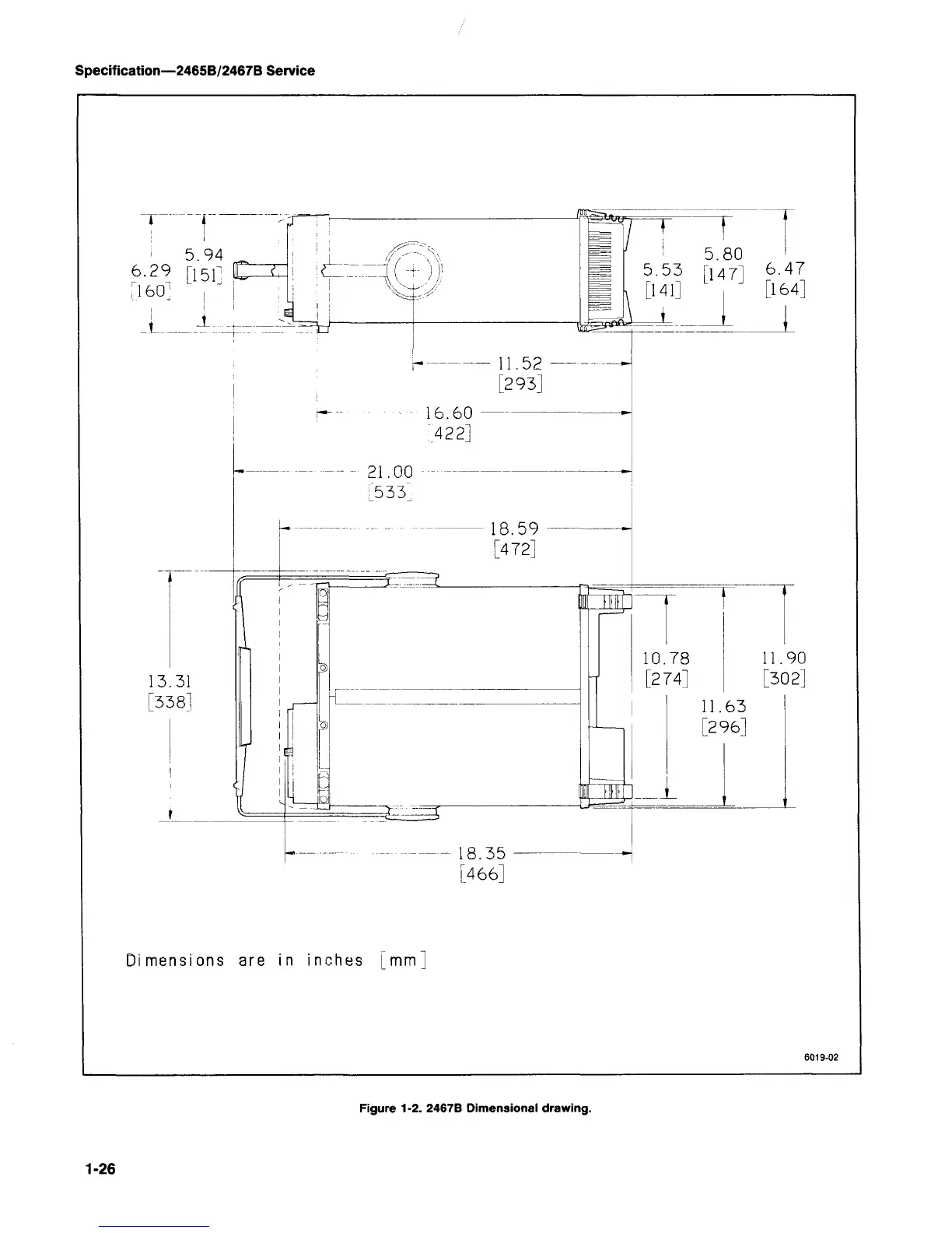
Figure 1-2. 2467B Dimensional drawing.
1-26

Table of Contents

Related product manuals