EasyManua.ls Logo

Teletek electronics iRIS8 - FAT;FBF Panels Connection

Teletek electronics iRIS8
33 pages
Print Icon
To Next Page IconTo Next Page
To Next Page IconTo Next Page
To Previous Page IconTo Previous Page
To Previous Page IconTo Previous Page
Loading...
iRIS8 - Addressable Fire Alarm Panel Installation Manual
25
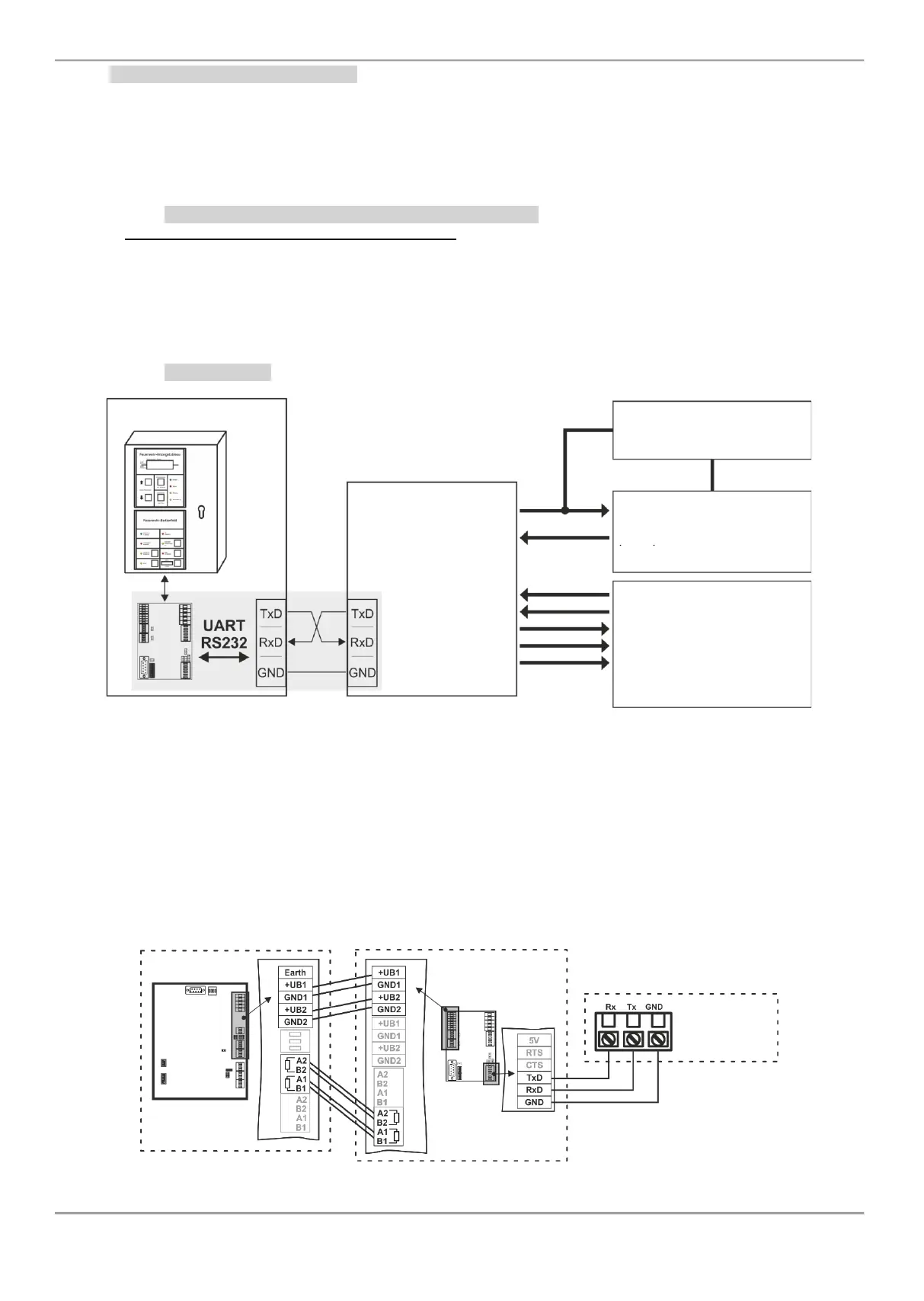
4.6.3. FAT/FBF Panels Connection
The iRIS8 addressable fire alarm panel can be used in systems for announcing a fire brigade unit for a fire alarm
situation in the protected site. Such systems are mainly used in Germany, as the fire panel is connected to FAT/FBF
(Fire Brigade indication panel with integrated Fire Brigade operation panel) type control panels via standard serial
interface. The general system configuration, according the German standards, includes: Fire alarm panel, FAT/FBF
control panel, Dialer - (GSM, GPRS, PSTN or similar transmission equipment), key safe and adapter box for the key
safe.
Compatible German Fire Brigade Panels Schraner
FAT- - German Fire Brigade Control and Indicator Panel (Feuerwehr-Anzeigetableau combined with a Feuerwehr-
Bedienfeld). A red metal housing (dimensions 360 x 250 x 60 mm) with a door. A key is required to open the door,
which has a Plexiglas ahead of the front. It has cable inlets on the back side and is intended to be wall mounted. The
function, Display information, LED indicators and push buttons on the front are in accordance with DIN 14661 / 14662.
The front’s designation texts are in German. The FAT-KÜ must be connected to a redundant network created by the
SM3-RM redundancy module to guarantee the correct operation with iRIS8 fire alarm panel.
Block Diagram
Figure 29
Notes:
The connections between iRIS8 fire panel and the adapter box for key safe, and the Dialer are realized using the addressable modules with
inputs and outputs (MIO22, MIO22M, MOUT, MINP, MIO04, MIO40), as for the outputs can be used also the panel’s programmable relay
outputs Figure 18. Different combinations are possible according the system configuration.
The programming of the inputs and outputs controlling the operation of the adapter key safe and the dialer is available in menu (access
level 3 - System-Programming-Panel-FAT/FBF&ESPA444, select the option FAT/FBF, press Apply button and then press MORE button).
The connection is realized to RS232 terminals of the interface board Figure 27, position 5.
A jumper must be set on the top position of the JP-4 terminal.
The UART connection is realized between iRIS8 fire panel and SM3 redundancy module. The internal connection
between the redundancy module and FAT/FBF fire brigade panel is presented in Figure 30.
Figure 30
FAT/FBF Panel
SM3 Module
External Power Supply
(EN54-4 compliant)
10-36VDC
+ Unlock / - Unlock
Sabotage / Deckel
kontakt
Adapter box for key safe
AUSG - Relay output
STOE - Dialer Fault Output
ML1 - Fire Alarm
ML2 - Panel Fault
ML3 - Key Safe Sabotage
Dialer
Output 1
Input 1
Input 2
Input 3
Output 2
Output 3
Output 4
FAT
Indication Panel
PCB
SM3
Module
UART/RS232
(up to 30m)

Other manuals for Teletek electronics iRIS8

Related product manuals