EasyManua.ls Logo

TempMaster OmniElite - Page 62

Default Icon
80 pages
Print Icon
To Next Page IconTo Next Page
To Next Page IconTo Next Page
To Previous Page IconTo Previous Page
To Previous Page IconTo Previous Page
Loading...
TEMPMASTER
62
FORM TPM3-EG1 (518)
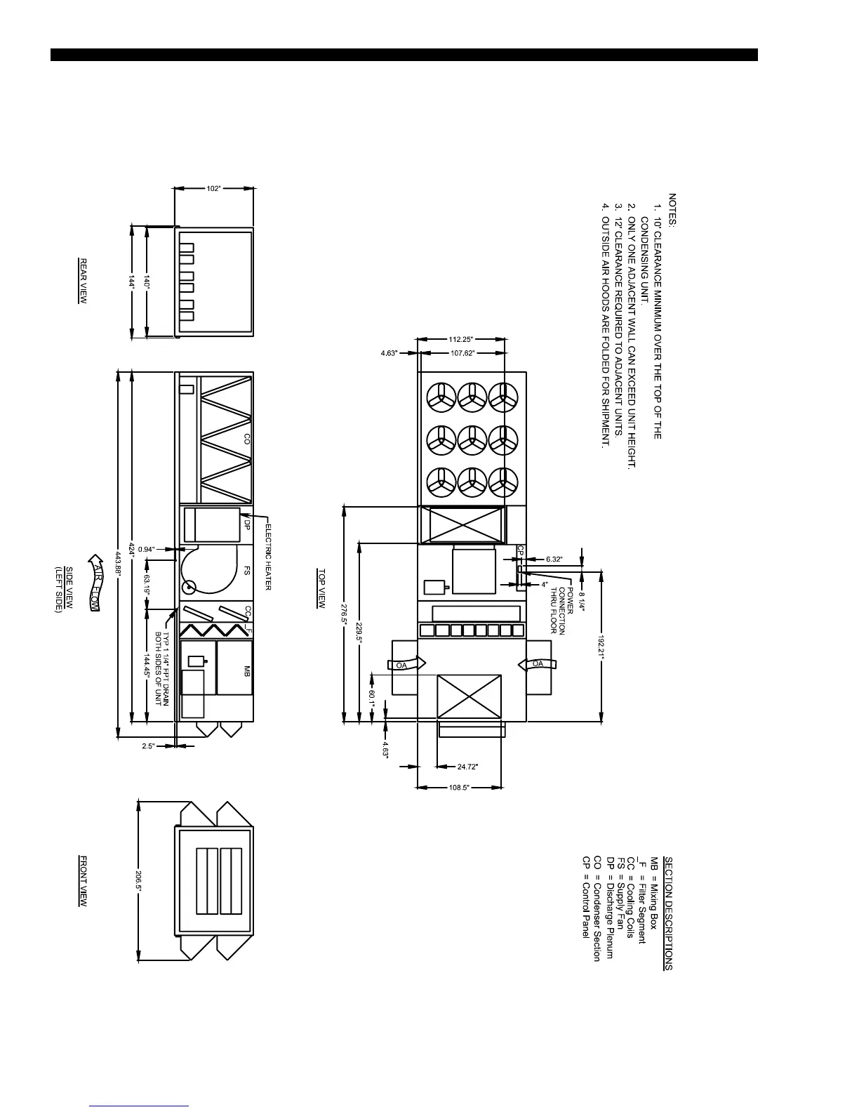
BOTTOM SUPPLY / BOTTOM RETURN / POWERED EXHAUST / ECONOMIZER / GAS HEAT / ANGLED
FILTERS
FIGURE 10 - GENERAL ARRANGEMENT DRAWING (CON'TD)
General Arrangement Drawing – 120–150 Ton Models (Cont'd)

Related product manuals