EasyManua.ls Logo

TempMaster OmniElite - Page 63

Default Icon
80 pages
Print Icon
To Next Page IconTo Next Page
To Next Page IconTo Next Page
To Previous Page IconTo Previous Page
To Previous Page IconTo Previous Page
Loading...
63
TEMPMASTER
FORM TPM3-EG1 (518)
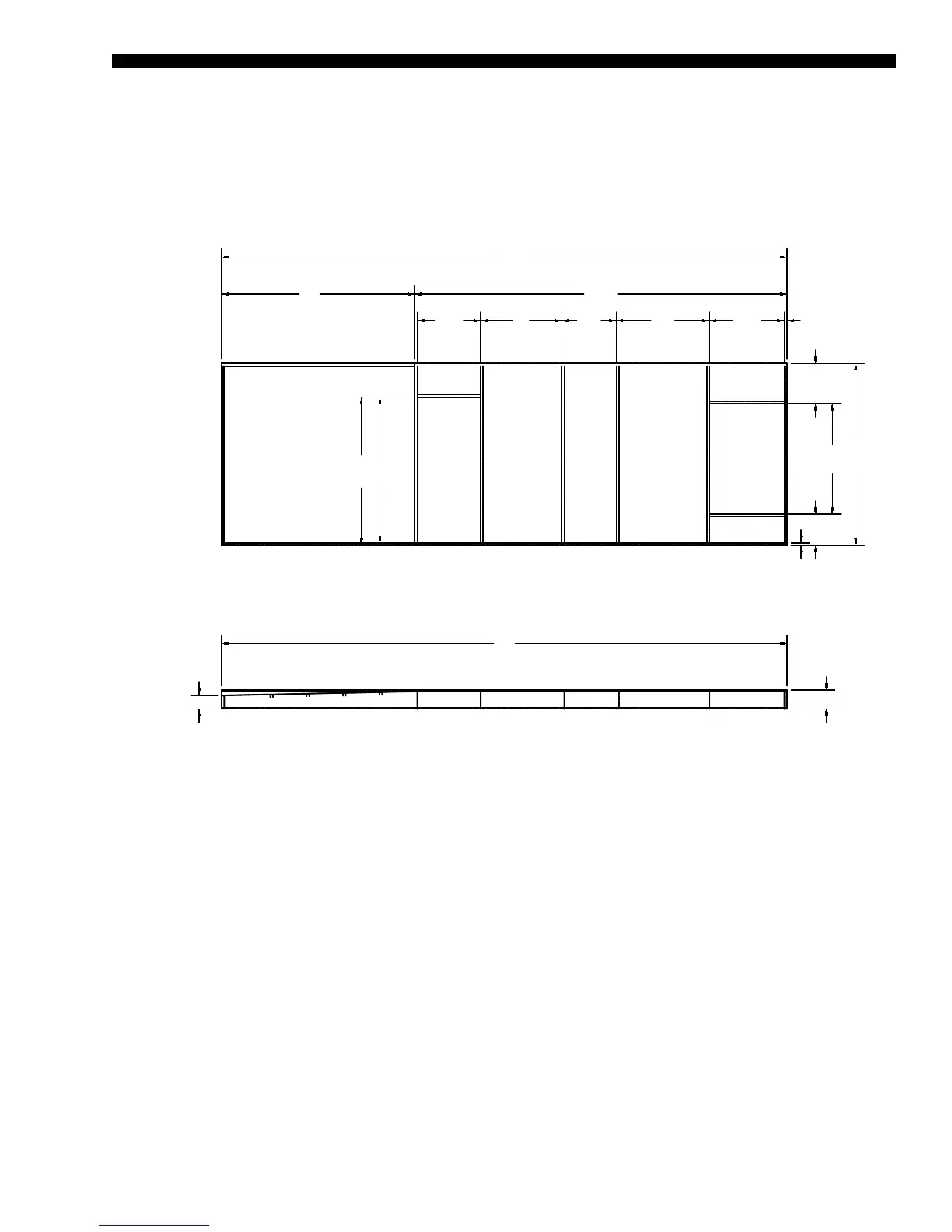
CURB LAYOUT DRAWING / 120–150 TON STANDARD CABINET
NOTES:
1. Unit must be installed square and level.
2. Curb conguration for bottom return and bottom supply.
3. These drawings are not intended as construction documents for the eld fabricated roof curbs. TempMaster will not be responsible for the
unit t up, leak integrity, or sound level for installation using eld fabricated roof curbs.
4. The TempMaster
®
OmniElite
unit does not have a base pan under the condensing section of the unit. Field fabricated roof curbs must
have a cap on the top of the condensing section of the curb to prevent moisture from entering the space. The cap design must be sloped
away from the supply duct opening to the end of the unit for the drainage of the moisture off of the top of the cap.
5. Depicted above is a full perimeter curb.
8"
68.9"
29.94"
14"
2" TYP
40.5"60"
276.00"
419" O.D.
RETURN
2" TYP
SUPPLY
109.75"
419"
135" O.D.
47"
I.D.
55.6"
I.D.
81.84"
I.D.
107.75"
I.D.
23.22"
143"
FIGURE 10 - GENERAL ARRANGEMENT DRAWING (CON'TD)

Related product manuals