EasyManua.ls Logo

Tennant 800 - 800; 810 Hopper Lift

Tennant 800
402 pages
Print Icon
To Next Page IconTo Next Page
To Next Page IconTo Next Page
To Previous Page IconTo Previous Page
To Previous Page IconTo Previous Page
Loading...
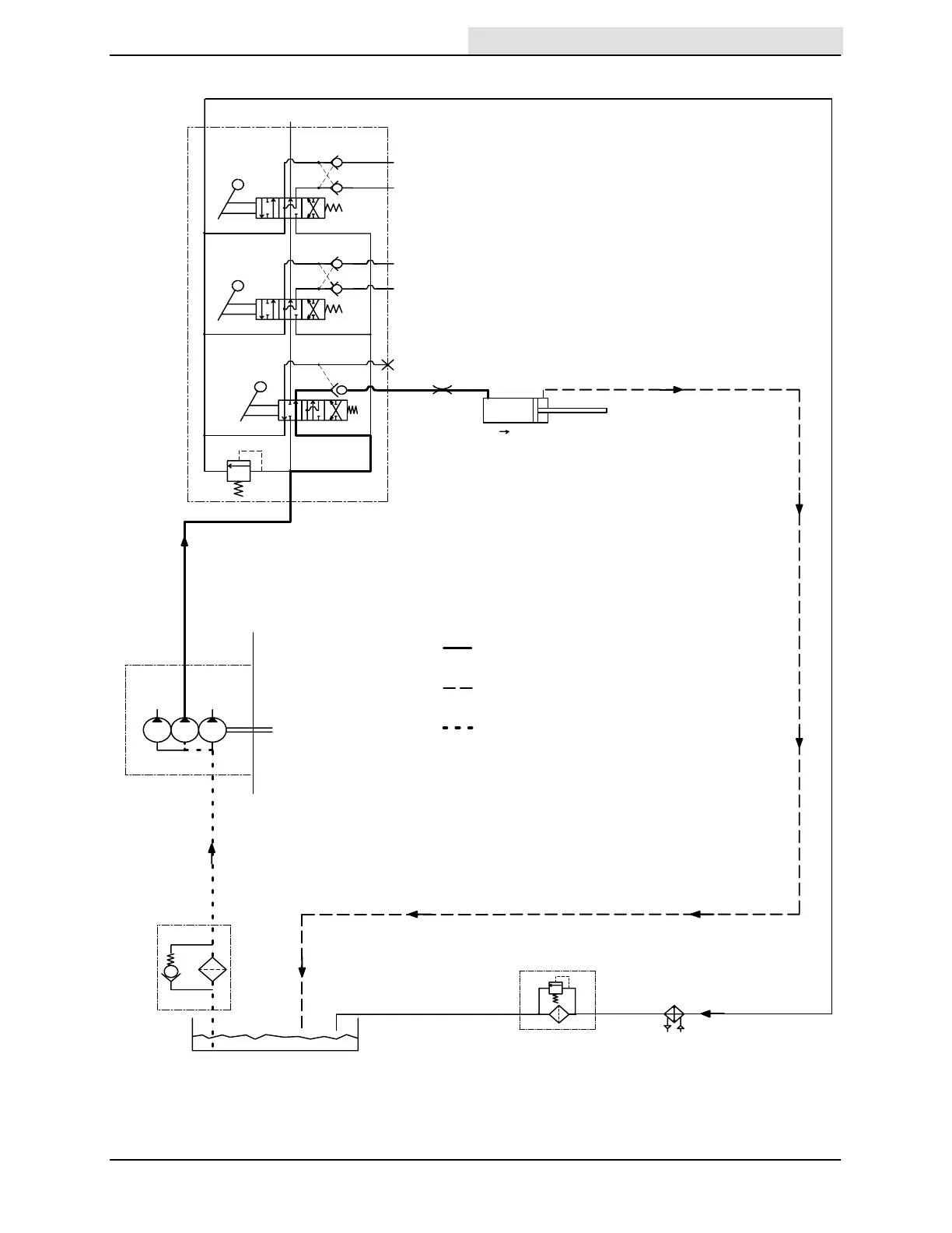
HYDRAULICS
800/810 MM337 (8--97)
5--67
800 / 810 HOPPER LIFT
LIFT
6.2 GPM @ 2400 RPM
PRESSURE
RETURN
SUCTION
OUT
B
LIFT
A
IN
RV2
2000 psi
13800 kPa
23.5 LPM @ 2400 RPM
RV8
3psi
20 kPa
RV4
25 psi
170 kPa
,k
DOOR
ROLL

Table of Contents

Other manuals for Tennant 800

Related product manuals