EasyManua.ls Logo

Thermaflow TH12 - A1.2 Solar Wiring Schematic

Default Icon
32 pages
Print Icon
To Previous Page IconTo Previous Page
To Previous Page IconTo Previous Page
Loading...
THERMAL INNOVATIONS (UK) LTD | THERMAFLOW® ELECTRIC COMBINATION BOILER | Tel: 0870 850 5207
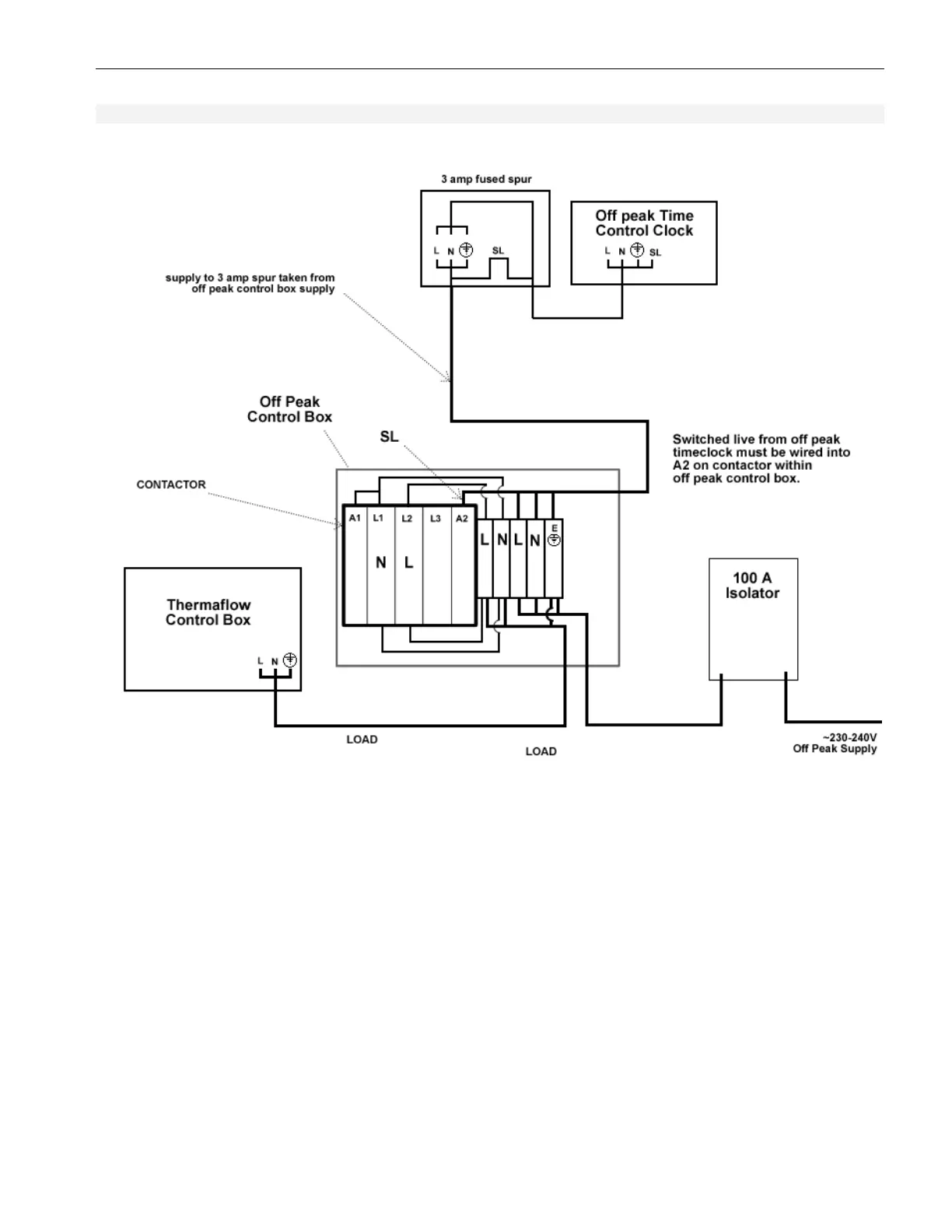
A1.2 Solar Wiring Schematic
32

Table of Contents