EasyManua.ls Logo

Thermann TH160GLG - Typical Installation Layout

Thermann TH160GLG
36 pages
Print Icon
To Next Page IconTo Next Page
To Next Page IconTo Next Page
To Previous Page IconTo Previous Page
To Previous Page IconTo Previous Page
Loading...
777
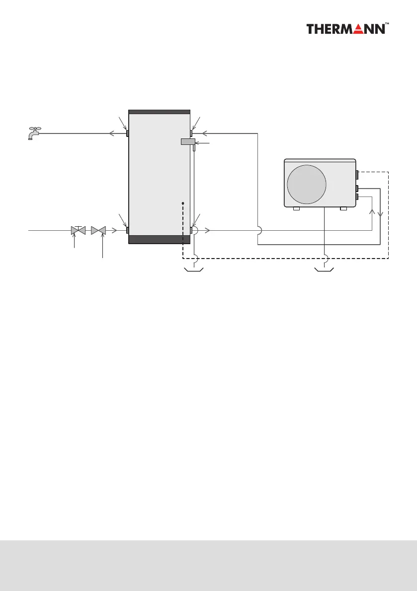
TYPICAL INSTALLATION LAYOUT
Heat Pump Unit
Hot Return
Cold Supply
Tundish
Cold Water Inlet
Hot Water Outlet
To House
From Town
Water Supply
Water Tap
PTR Valve
850kPa
Stop Valve
Pressure Limiting Valve 500kPa
Thermistor Cable
To Tank Unit
Hot Water flow
Cold Water flow
To Heat Pump Unit
Tank Unit
Tundish

Related product manuals