EasyManua.ls Logo

ThyssenKrupp Mini gearless DAF270 - Replacing of Brakes

ThyssenKrupp Mini gearless DAF270
76 pages
Print Icon
To Next Page IconTo Next Page
To Next Page IconTo Next Page
To Previous Page IconTo Previous Page
To Previous Page IconTo Previous Page
Loading...
OPERATING MANUAL 7. MAINTENANCE
ThyssenKrupp Aufzugswerke GmbH 52 Issue 06.2004
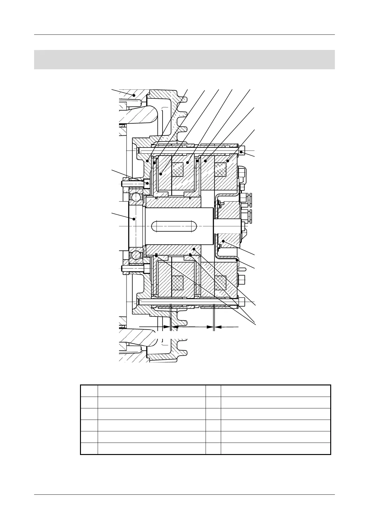
7.5 Replacing of brakes
1 Motor shaft 7 Brake magnet housing
2 Hexagon screw M8 x 40 8 Hexagon screw M12 x 200
3 Motor housing 9 Encoder
4 Bearing bracket 10 Fixing strap
5 Braking rotor 11 Toothed sleeve
6 Armature base plate 12 O ring
Fig. 19
1
2
3
4
5
6
8
9
A
ir
g
ap
A
ir
g
a
p
5
6
7
7
10
11
12

Related product manuals