EasyManua.ls Logo

Toshiba MMY-MAP0726FT2P-UL - Page 12

Toshiba MMY-MAP0726FT2P-UL
287 pages
Print Icon
To Next Page IconTo Next Page
To Next Page IconTo Next Page
To Previous Page IconTo Previous Page
To Previous Page IconTo Previous Page
Loading...
(33)
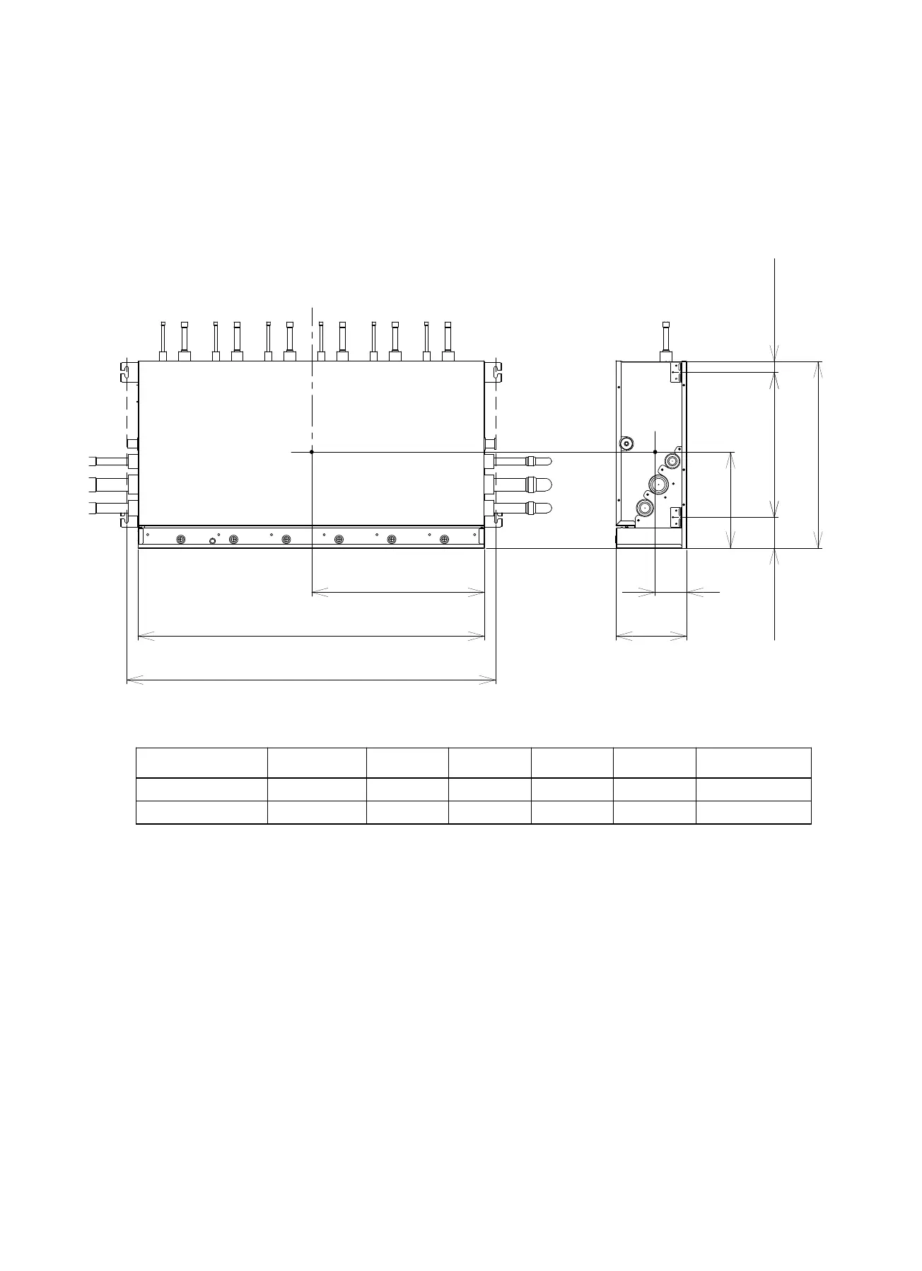
Multi port FS unit
11
RBM-Y0611***
A B X Y Z
Weight [lbs (kg)]
F4PUL
28.8"(730) 31.6"(802) 11.6"(293) 14.4"(365) 3.8"(96) 84(38)
F6PUL
41.4"(1,050) 44.2"(1,122) 11.6"(293) 20.7"(525) 3.8"(96) 117(53)
22.4"(567)
X
A
Y
8.5"(215)
Z
G
(Unit external dimension)
B
(Hanging bolt pitch)
17.4"(440)3.7"(94)
(Unit external dimension)
(Hanging bolt pitch)
(1.3"(33))
Unit: in (mm)

Table of Contents

Other manuals for Toshiba MMY-MAP0726FT2P-UL

Related product manuals