EasyManua.ls Logo

Toshiba MMY-MAP0726FT2P-UL - All Heating Mode (Operation of Heating Only)

Toshiba MMY-MAP0726FT2P-UL
287 pages
Print Icon
To Next Page IconTo Next Page
To Next Page IconTo Next Page
To Previous Page IconTo Previous Page
To Previous Page IconTo Previous Page
Loading...
44
SVD
SVDD
SVS
SVSS
SV
SV
SV
SV
FS unit Indoor unit
TC2 TCJ TC1
Heating
PMV
SV
SV
SV
SV
TC2 TCJ TC1
Stop
PMV
SV
SV
SV
SV
TC2 TCJ TC1
Heating thermo OFF
PMV
SV
SV
SV
SV
TC2 TCJ TC1
Heating
PMV
SVD
SVDD
SVS
SVSS
SVD
SVDD
SVS
SVSS
SVD
SVDD
SVS
SVSS
Discharge gas pipe
Suction gas pipe
TL1
TS1
SV2
TE1
SV3D
SV3B
SV3A
TD1
TK4
TK5
Fan
Liquid tank
SV6
TO
SV3C
Fan motor
SV
SV5
SV
TD2
SV42
TK2
SV
SV41
TK1
SV
SV
SV
SV
0
SV
SV
FP
TS2
SV
(SV14)
FM
SV
SV
SV11
SV
SV3E
Liquid pipe
Balance pipe
Right side
Main heat exchanger
Left side
Main heat exchanger
Right side sub heat exchanger
Left side sub heat exchanger
High-pressure sensor
Check joint (High-pressure)
Low-pressure sensor
Check joint
(Low-pressure)
Accumlator
Comp1 Comp2
Oil header
Check joint
Liquid pipe
PMV PMV PMV PMV
TCS
TCS TCS TCS
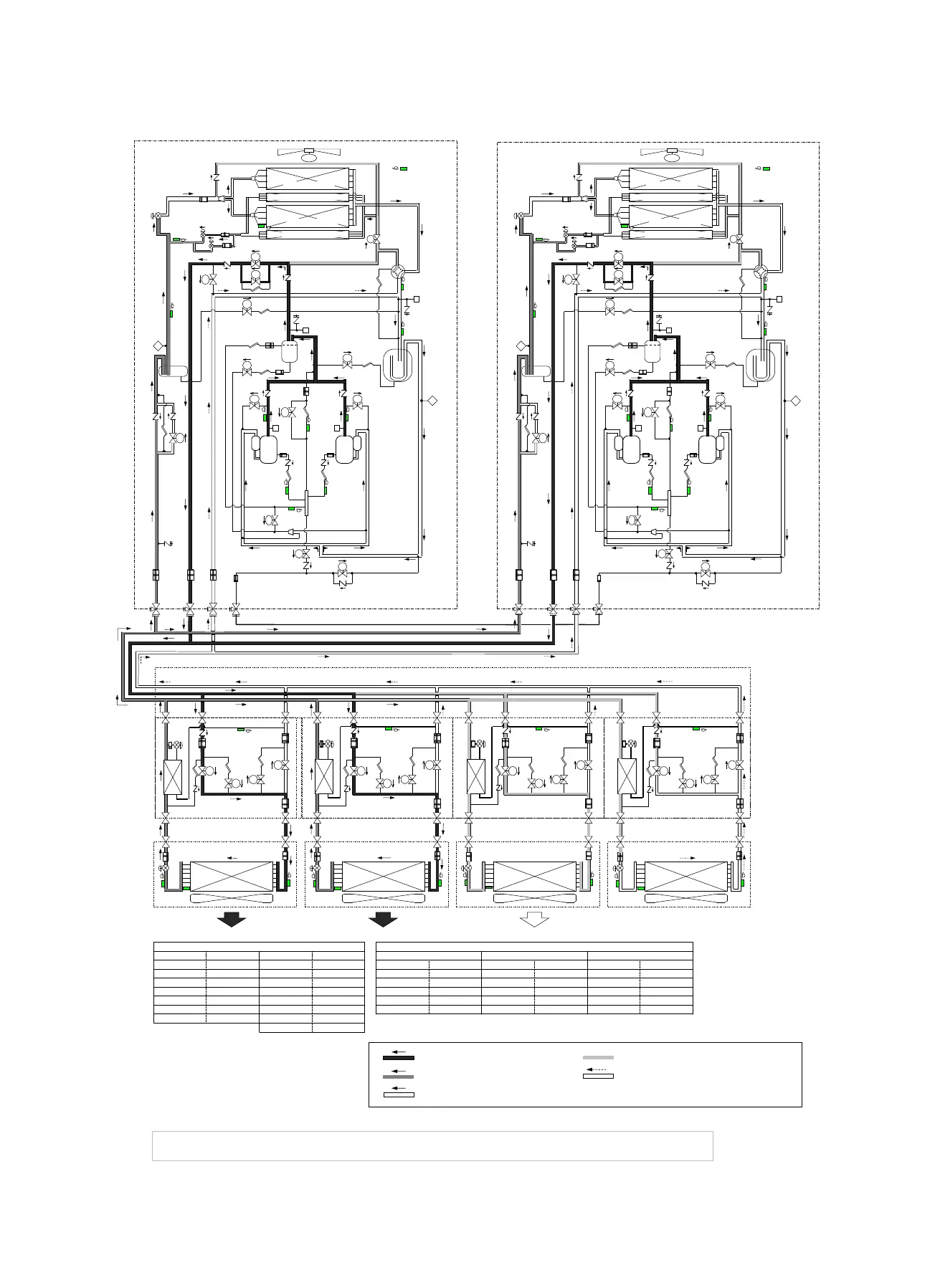
5-4. All Heating mode (Operation of heating only)
Oudoor header unit (MMY-MAP0726FT*-UL) Outdoor follower unit (MMY-MAP0726FT*-UL)
The outdoor unit which communication line between indoor and outdoor is connected is the “Header unit”.
Other outdoor units are called “Follower units”.
4-way
valve
Oil
separator
SV
SV15
PMV4
PMV3
PMV1
TE2
TL1
TS1
SV2
TE1
SV3D
SV3B
SV3A
TD1
TK4
TK5
Fan
Liquid tank
SV6
TO
SV3C
Fan motor
SV
SV5
SV
TD2
SV42
TK2
SV
SV41
TK1
SV
SV
SV
SV
0
SV
SV
FP
TS2
SV
(SV14)
FM
SV
SV
SV11
SV
SV3E
Right side
Main heat exchanger
Left side
Main heat exchanger
Right side sub heat exchanger
Left side sub heat exchanger
High-pressure sensor
Check joint (High-pressure)
Low-pressure sensor
Check joint
(Low-pressure)
Accumlator
Comp1 Comp2
Oil header
Check joint
Liquid pipe
4-way
valve
Oil
separator
SV
SV15
PMV4
PMV3
PMV1
TE2
FP
FP
Fusible
plug
Fusible
plug
Fusible
plug
Fusible
plug
( 12 ton system described in the example of ( 6ton + 6ton ))
High-pressure gas refrigerant
Condensed liquid refrigerant
Evaporative gas refrigerant (Low pressure)
Pressure circuit (High-pressure refrigerant)
Low-pressure circuit (Refrigerant recovery line)
Outdoor unit FS unit / Indoor unit
4-Way valve ON S
V3A Control Heating thermo ON Heating thermo OFF Stop
SV4(n) OFF(*1) SV3B Control SVD ON SVD ON SVD OFF
SV5 OFF SV3C Control SVS OFF SVS OFF SVS OFF
SV6 Control SV3D Control SVDD OFF SVDD OFF SVDD OFF
SV11 ON SV3E ON SVSS OFF SVSS OFF SVSS ON
SV12 OFF PMV1 Control PMV FS Close(*3) PMV FS Close(*3) PMV FS Close(*3)
SV14 ON(*2) PMV3 Close PMV indoor Control PMV indoor Close(*3) PMV indoor Close(*3)
SV15 ON PMV4 Close(*3)
Outdoor Fan Control
(*1) SV4(n) of stopped compressor (n) = ON
(*2) SV14 of stopped outdoor unit = OFF
(*3) In defrost mode, PMV4 ,PMV FS and PMV indoor also open.

Table of Contents

Other manuals for Toshiba MMY-MAP0726FT2P-UL

Related product manuals