EasyManua.ls Logo

Toshiba RAV-HM301MUT-E - Construction Views (External Views); RAV-HM301 MUT-E

Toshiba RAV-HM301MUT-E
115 pages
To Next Page IconTo Next Page
To Next Page IconTo Next Page
To Previous Page IconTo Previous Page
To Previous Page IconTo Previous Page
Loading...
– 17 –
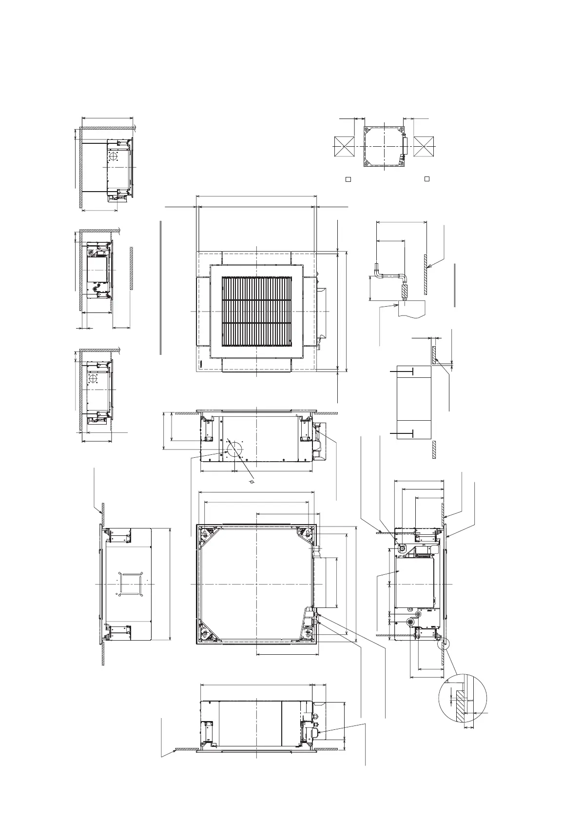
1. CONSTRUCTION VIEWS (EXTERNAL VIEWS)
1-1. RAV-HM301MUT-E
㻯㼑㼕㼘㼕㼚㼓㻌㼛㼜㼑㼚㻌㼐㼕㼙㼑㼚㼟㼕㼛㼚㻌㻡㻤㻜㻌㼠㼛㻌㻡㻥㻠
㻯㼑㼕㼘㼕㼚㼓㻌㼛㼜㼑㼚㻌㼐㼕㼙㼑㼚㼟㼕㼛㼚㻌㻡㻤㻜㻌㼠㼛㻌㻡㻥㻠
㻝㻠㻢
㻝㻥㻝
㻝㻣㻠㻚㻡㻠㻜㻜㻚㻡
㼁㼚㼕㼠㻌㼑㼤㼠㼑㼞㼚㼍㼘㻌㼐㼕㼙㼑㼚㼟㼕㼛㼚㻌㻡㻣㻡
Bottom face
of ceiling
㼁㼚㼕㼠㻌㼑㼤㼠㼑㼞㼚㼍㼘㻌㼐㼕㼙㼑㼚㼟㼕㼛㼚㻌㻡㻣㻡
㻯㼑㼕㼘㼕㼚㼓㻌㼛㼜㼑㼚㻌㼐㼕㼙㼑㼚㼟㼕㼛㼚㻌㻡㻤㻜㻌㼠㼛㻌㻡㻥㻠
㻼㼍㼚㼑㼘㻌㼑㼤㼠㼑㼞㼚㼍㼘㻌㼐㼕㼙㼑㼚㼟㼕㼛㼚㻌㻢㻞㻜
㻼㼍㼚㼑㼘㻌㼑㼤㼠㼑㼞㼚㼍㼘㻌㼐㼕㼙㼑㼚㼟㼕㼛㼚㻌㻢㻞㻜
㻯㼑㼕㼘㼕㼚㼓㻌㼛㼜㼑㼚㻌㼐㼕㼙㼑㼚㼟㼕㼛㼚㻌㻡㻤㻜㻌㼠㼛㻌㻡㻥㻠
㻟㻞㻡㻚㻡
㻟㻞㻜
Refrigerant pipe
connecting port DIA 6.4
Refrigerant pipe
connecting port DIA 9.5
(Gas side)
(Liquid side)
Auxiliary fresh air flange
Knockout for
Electric parts box
㻞㻝㻠
㻞㻡㻢
㻔㻥㻟㻕
㻠㻜
㻝㻟㻞
㻝㻣㻟
㻞㻡㻣
㻣㻜
Drain pipe connecting port
(VP20)
Bottom face
of ceiling
Ceiling panel
Space required for installation and servicing
㻝㻜㻜㻜㻌㼛㼞㻌㼙㼛㼞㼑
㻝㻜㻜㻜㻌㼛㼞㻌㼙㼛㼞㼑
㻝㻡㻌㼛㼞㻌㼙㼛㼞㼑
㻝㻡㻌㼛㼞㻌㼙㼛㼞㼑
An obstacle
㼛㼞㻌㼙㼛㼞㼑
㻟㻜㻜㻌㼛㼞㻌㼘㼑㼟㼟
Indoor unit
Stand-up
Bottom face
of ceiling
standing size
Stand-up
( 450)
Check port
㻞㻜㻜
Hanging bolt M10 or W3/8
(Procured by locally)
㻴㼍㼚㼓㼕㼚㼓㻌㼎㼛㼘㼠㻌㼜㼕㼠㼏㼔㻌㻡㻟
㻴㼍㼚㼓㼕㼚㼓㻌㼎㼛㼘㼠㻌㼜㼕㼠㼏㼔㻌㻠㻥㻢㻌㼠㼛㻌㻡㻟㻤
㻢㻟㻢
㼛㼞㻌㼘㼑㼟㼟
㻤㻡㻜㻌㼛㼞㻌㼘㼑㼟㼟
㻡㻟
㻝㻥㻟
㻝㻡㻠
㻝㻠㻢
㻝㻟㻌㼠㼛㻌㻞㻜 㻝㻟㻌㼠㼛㻌㻞㻜
㻝㻟㻌㼠㼛㻌㻞㻜㻝㻟㻌㼠㼛㻌㻞㻜
Bottom face
of ceiling
㻠㻜㻜㻌㼛㼞㻌㼙㼛㼞㼑
Note) IF there is no ce
iling board, the length of
the hanging bolt shall be more than 400mm.
㻝㻞
㻡㻢㻜㻌㼛㼞㻌㼙㼛㼞㼑
Wiring entry
(for power supply)
Wiring entry
(for remote
㻝㻤㻠
control)
Drain up
㻞㻟
㻗㻡
㻙㻜
㻞㻚㻡㻌㼠㼛㻌㻥㻚㻡
Indoor unit
Bottom face
of ceiling
㻞㻣㻝㻌㼛㼞㻌㼙㼛㼞㼑
㼛㼞㻌㼙㼛㼞
㻞㻣㻝
㻝㻜㻜㻜
㻞㻜㻜
( 450)
Check port
For the adjustment of
the installation height of
the indoor unit.
㻝㻜㻜㻜㻌㼛㼞㻌㼙㼛㼞㼑
*2)
*2
*1
*1)
For piping, maintenance,
and servicing.
㻣㻠
(Unit: mm)

Other manuals for Toshiba RAV-HM301MUT-E

Related product manuals