EasyManua.ls Logo

Trane 5TXCA001AS3HCA - Outline Drawing

Trane 5TXCA001AS3HCA
24 pages
Print Icon
To Next Page IconTo Next Page
To Next Page IconTo Next Page
To Previous Page IconTo Previous Page
To Previous Page IconTo Previous Page
Loading...
20 18-AD47D1-1B-EN
Installer’s Guide
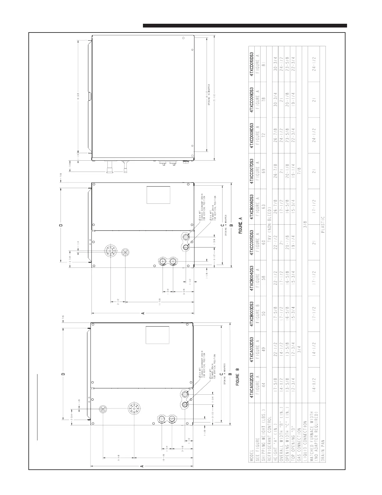
W: OUTLINE DRAWING for models: 5TXCA002AS3HCA, 5TXCA032AS3HCA, 5TXCB003AS3HCA, 5TXCB004AS3HCA, 5TXCB006AS3HCA,
5TXCC005AS3HCA, 5TXCC007AS3HCA, 5TXCD008AS3HCA, 5TXCC009AS3HCA and 5TXCD010AS3HCA
From Dwg.
D346710 Rev A

Related product manuals