EasyManua.ls Logo

Trane RTAA-125 - RTAA Rigging and Lifting Weights -Pump Package Aluminum Fins

Trane RTAA-125
178 pages
Print Icon
To Next Page IconTo Next Page
To Next Page IconTo Next Page
To Previous Page IconTo Previous Page
To Previous Page IconTo Previous Page
Loading...
14 RTAA-SVX01A-EN
Installation — Mechanical
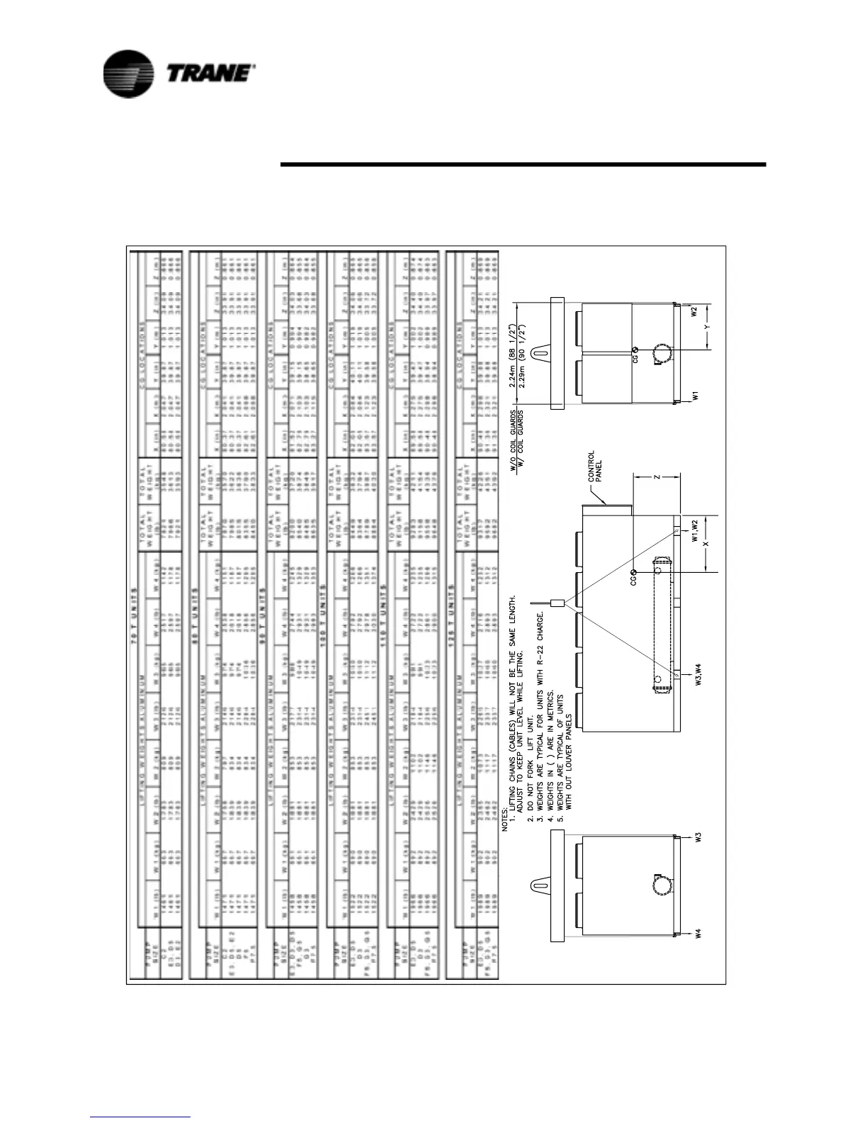
Figure 6 RTAA Rigging and Lifting Weights –Pump Package Aluminum Fins

Table of Contents

Related product manuals