EasyManua.ls Logo

Trane RTAA-125 - Pump Package Piping Schematic

Trane RTAA-125
178 pages
Print Icon
To Next Page IconTo Next Page
To Next Page IconTo Next Page
To Previous Page IconTo Previous Page
To Previous Page IconTo Previous Page
Loading...
RTAA-SVX01A-EN 143
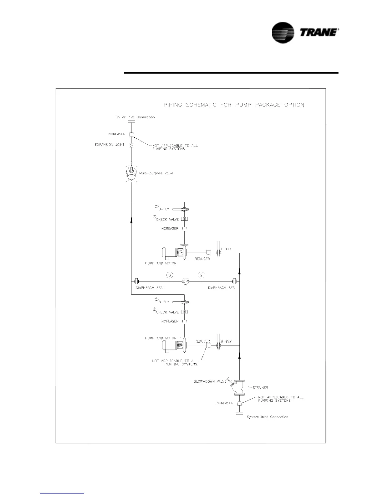
Pump Package
Figure 47 Pump Package Piping Schematic

Table of Contents

Related product manuals