EasyManua.ls Logo

Trane RTAA-125 - Top View; Side View

Trane RTAA-125
178 pages
Print Icon
To Next Page IconTo Next Page
To Next Page IconTo Next Page
To Previous Page IconTo Previous Page
To Previous Page IconTo Previous Page
Loading...
RTAA-SVX01A-EN 43
Installation — Remote Evaporator
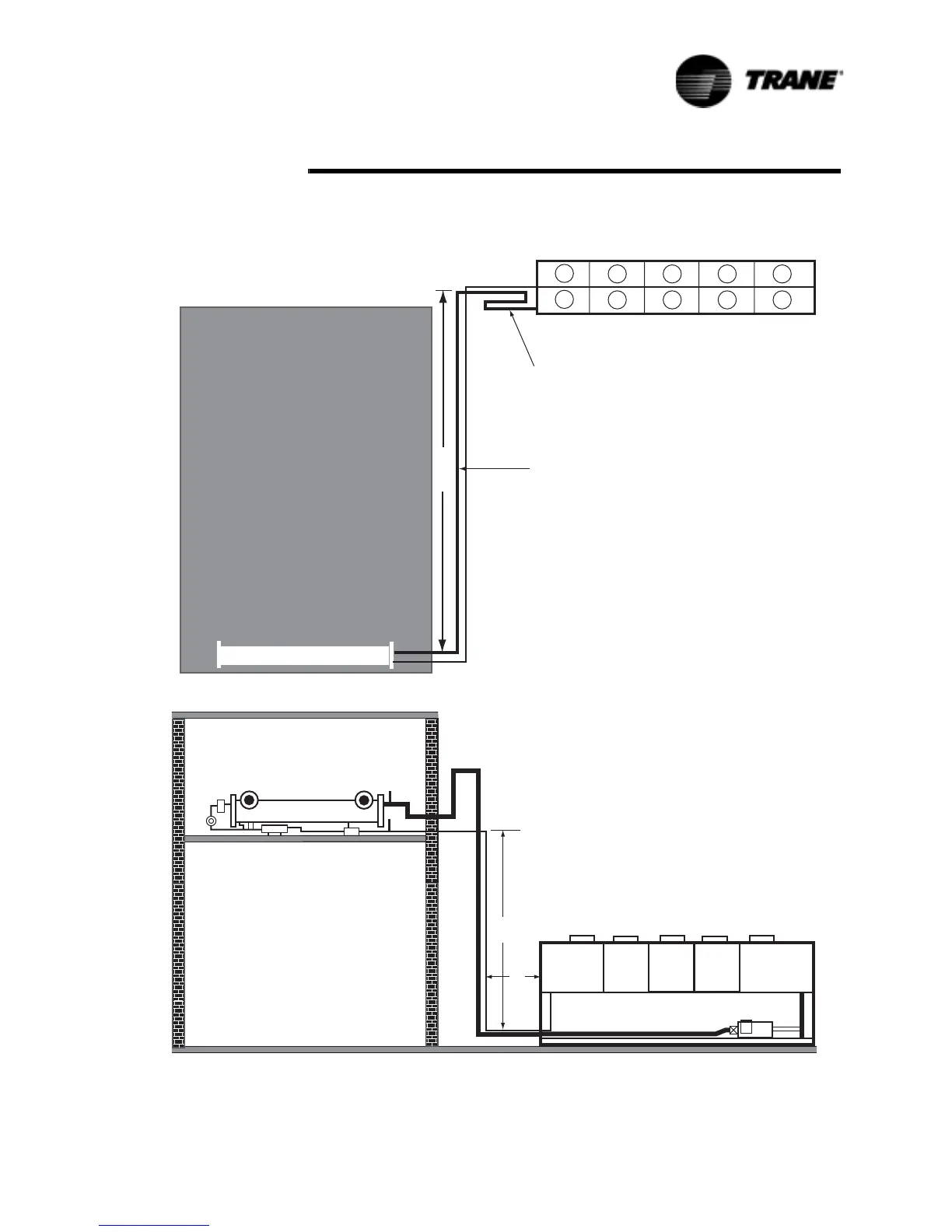
Figure 23 Suction Accumulator Sizing Example
&RQGHQVHU&RLO
/LTXLG/LQH
6XFWLRQ/LQH
&RPSUHVVRU
6,'(9,(:
7239,(:
&RQGHQVHU&RLO
5HPRWH(YDSRUDWRU
¶´

µ
IHHWRIKRUL]RQWDOVXFWLRQ
DFFXPXODWRUDWDKHLJKWQRWWR
H[FHHGLQFKHVDERYHWKHVXFWLRQ
OLQHFRQQHFWLQJSRLQWV
IHHWKRUL]RQWDOUXQDWWKHVDPH
HOHYDWLRQDVWKHUHPRWHHYDSRUDWRU
2XWGRRUFRQGHQVLQJXQLW¶V
HOHYDWLRQLVIHHWORZHUWKDQ
WKDWRIHYDSRUDWRUIHHWKRUL]RQWDO
UXQDWWKHVDPHHOHYDWLRQDVWKH
RXWGRRUFRQGHQVLQJXQLW

Table of Contents

Related product manuals