EasyManua.ls Logo

Trane S9V2B040U3VSBB - Outline Drawings

Trane S9V2B040U3VSBB
120 pages
Print Icon
To Next Page IconTo Next Page
To Next Page IconTo Next Page
To Previous Page IconTo Previous Page
To Previous Page IconTo Previous Page
Loading...
S9V2-VS-SVX001-1D-EN
15
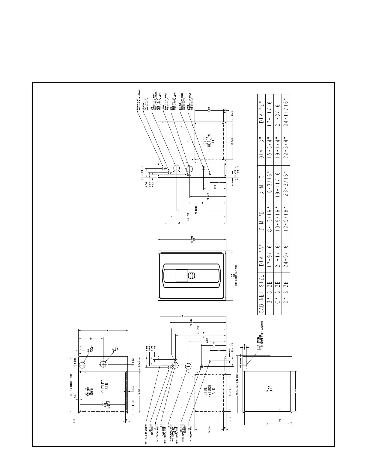
Outline Drawings
Table 2. 17.5”, 21” and 24.5” Upflow Cabinets

Related product manuals