EasyManua.ls Logo

Trane S9V2C100U4VSAD - Outline Drawings

Trane S9V2C100U4VSAD
120 pages
Print Icon
To Next Page IconTo Next Page
To Next Page IconTo Next Page
To Previous Page IconTo Previous Page
To Previous Page IconTo Previous Page
Loading...
S9V2-VS-SVX001-1B-EN
15
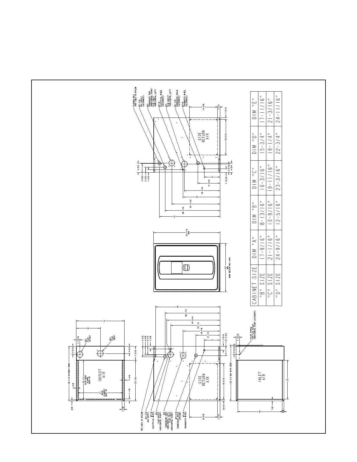
Outline Drawings
Table 2. 17.5”, 21” and 24.5” Upflow Cabinets

Related product manuals