EasyManua.ls Logo

Trane S9V2C100U4VSAD - Furnace General Installation; Air for Combustion and Ventilation

Trane S9V2C100U4VSAD
120 pages
Print Icon
To Next Page IconTo Next Page
To Next Page IconTo Next Page
To Previous Page IconTo Previous Page
To Previous Page IconTo Previous Page
Loading...
46
S9V2-VS-SVX001-1B-EN
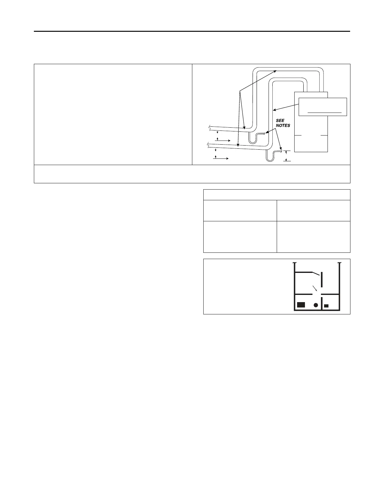
Downward Venting
Furnace may be in vertical or horizontal configuration.
Notes:
1. Condensate trap for vent pipe must be a minimum of 6
inches in height.
2. Condensate trap for vent and inlet pipe must be
connected into a condensate drain pump; an open or
vented drain; or it can be connected to the outlet hose of
the Furnace condensate trap. Outdoor draining of the
Furnace and coil condensate is permissible if allowed by
local codes.
3. The condensate trap should be primed at initial start up
prior to heating season operation.
6" Min.
Upflow or
Downflow
Furnace
Downward vent length
is limited to a maximum
of 15 equivalent feet.
All horizontal pipes must be
supported at maximum of
3 foot intervals
Slope 1/4" per ft.
Slope 1/4" per ft.
Caution should be taken to prevent drains from freezing or causing slippery conditions that could lead to personal injury. Excessive draining of
condensate may cause saturated ground conditions that may result in damage to plants.
Air for Combustion and
Ventilation
Adequate flow of combustion and ventilating air must
not be obstructed from reaching the Furnace. Air
openings provided in the Furnace casing must be kept
free of obstructions which restrict the flow of air.
Airflow restrictions affect the efficiency and safe
operation of the Furnace. Keep this in mind should you
choose to remodel or change the area which contains
your Furnace. Furnaces must have a free flow of air for
proper performance.
Provisions for combustion and ventilation air shall be
made in accordance with "latest edition" of Section 9.3,
Air for Combustion and Ventilation, of the National
Fuel Gas Code, ANSI Z223.1 / NFPA 54, or Sections 8.2,
8.3 or 8.4 of CSA B149.1 Installation Codes, and
applicable provisions of the local building codes.
Special conditions created by mechanical exhausting
of air and fireplaces must be considered to avoid
unsatisfactory Furnace operation.
Furnace location may be in an uunnccoonnffiinneedd space or a
ccoonnffiinneedd space.
UUnnccoonnffiinneedd space are installations with 50 cu. ft. or
more per 1000 BTU/hr input from all equipment
installed. Unconfined spaces are defined in the table
and illustration for various furnace sizes. These spaces
may have adequate air by infiltration to provide air for
combustion, ventilation, and dilution of flue gases.
Buildings with tight construction (for example, weather
stripping, heavily insulated, caulked, vapor barrier,
etc.), may need additional air provided as described for
confined space.
Minimum Area in Square Feet for Unconfined Space Installations
Furnace Maximum BTUH Input
Rating
With 8 Ft. Ceiling,
Minimum Area in Square Feet
of Unconfined Space
40,000
60,000
80,000
100,000
120,000
250
375
500
625
750
NO
DOORS
FURNACE
WATER
HEATER
CLOTHES
DRYER
UNCONFINED
50 CU. FT. OR MORE
PER 1000 BTU/HR INPUT
ALL EQUIP. INSTALLED
CCoonnffiinneedd spaces are installations with less than 50 cu.
ft. of space per 1000 BTU/ hr input from all equipment
installed. Confined spaces are defined in the table and
illustration for various furnace sizes. Air for combustion
and ventilation requirements can be supplied from
inside the building.
1. The following types of installations will rreeqquuiirree use
of OUTDOOR AIR for combustion, due to chemical
exposures:
Commercial buildings
Buildings with indoor pools
Furnaces installed in commercial laundry rooms
Furnaces installed in hobby or craft rooms
Furnaces installed near chemical storage areas
Exposure to the following substances in the
combustion air supply will also require OUTDOOR
AIR for combustion:
Permanent wave solutions
FFuurrnnaaccee GGeenneerraall IInnssttaallllaattiioonn

Related product manuals