EasyManua.ls Logo

Trane SWUD5020 - Dimensional Data

Trane SWUD5020
56 pages
Print Icon
To Next Page IconTo Next Page
To Next Page IconTo Next Page
To Previous Page IconTo Previous Page
To Previous Page IconTo Previous Page
Loading...
14
PKG-SVX029A-EN
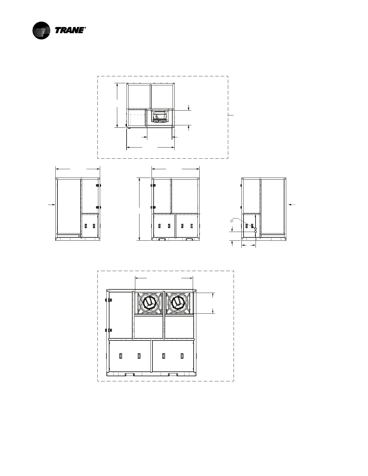
Dimensional Data
Figure 2. Unit dimensions (in inches)
The Top view drawing is a general representation.
The number of fans varies according to capacity.
See the general data table for fan quantity.
Front
(Fan Side) - Horizontal discharge
Front
(Fan side) - Vertical discharge
Height
Width
Left
(Control Box Side)
Depth
Airflow
Right
(Water Connection Side)
F
E
Water
Pipe
Airflow
Depth
Width
Top
Discharge Opening D
Discharge Opening C
21.857
Front Discharge
Opening Height
Discharge Opening A

Table of Contents

Related product manuals