EasyManua.ls Logo

Trane VAV-UCM 4.2 - Page 18

Trane VAV-UCM 4.2
88 pages
Print Icon
To Next Page IconTo Next Page
To Next Page IconTo Next Page
To Previous Page IconTo Previous Page
To Previous Page IconTo Previous Page
Loading...
18 VAV-SVX01C-EN
UCM 4.2 Installation and Wiring
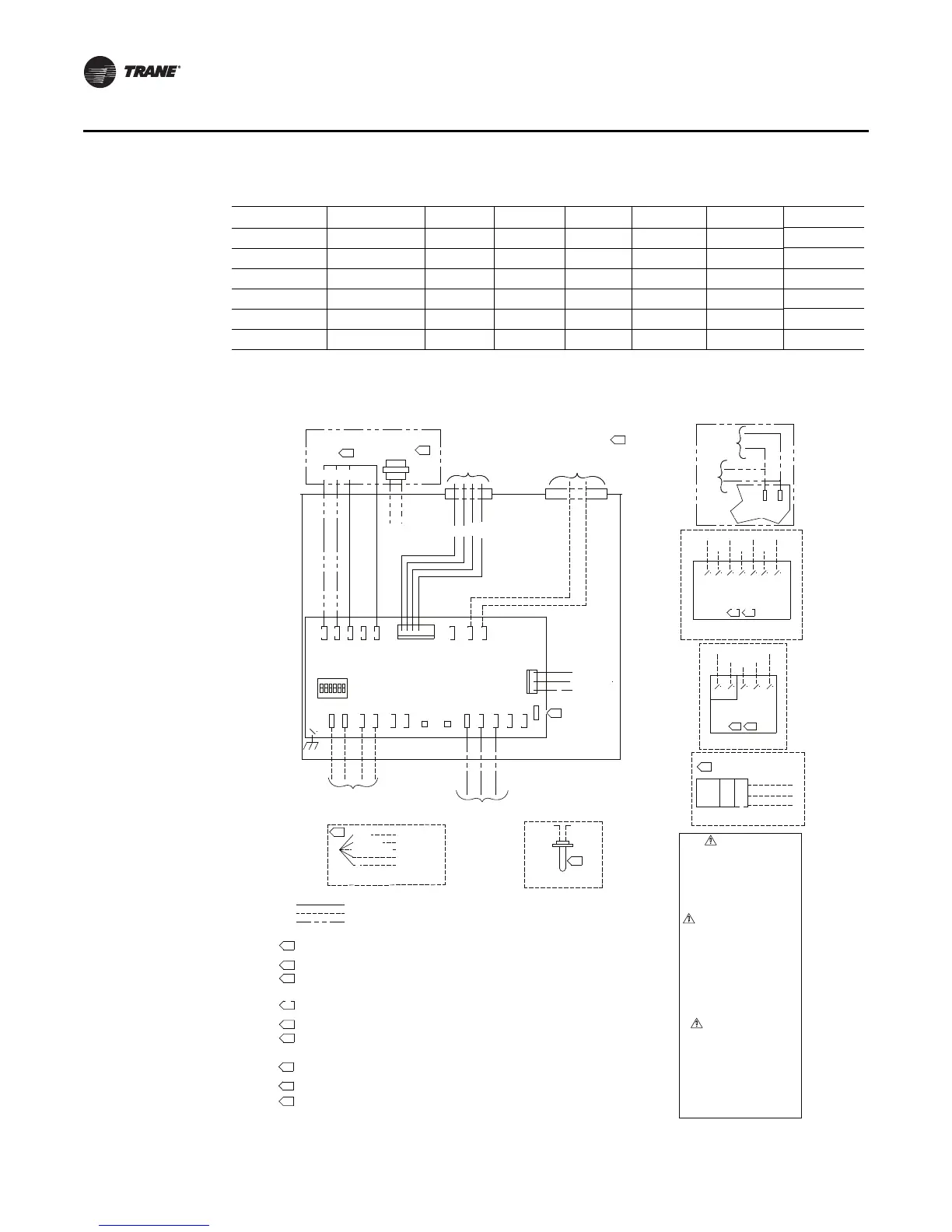
The following figures show wiring diagrams for typical applications of UCM 4.2
.
58 122 ON OFF ON OFF OFF OFF
59 123 OFF OFF ON OFF OFF OFF
60 124 ON ON OFF OFF OFF OFF
61 125 OFF ON OFF OFF OFF OFF
62 126 ON OFF OFF OFF OFF OFF
63 127 OFF OFF OFF OFF OFF OFF
Figure 3. Wiring diagram for single duct units with factory installed electric reheat
Table 6. DIP switch settings for UCM 4.2 (continued)
UCM Unit # Address Dip 1 Dip 2 Dip 3 Dip 4 Dip 5 Dip 6
TB2-5
TB3-3
11.
W/ COMM. JACK
DIGITAL DISPLAY ZONE SENSOR
OPTIONAL FIELD INSTALLED
DIGITAL DISPLAY ZONE SENSOR
REMOTE MTD.
TB3-3
TB3-2
W/ COMM. JACK
REMOTE MTD.
ZONE SENSOR
OPTIONAL FIELD
INSTALLED ZONE SENSOR
UCM or EI Board
CO2 SENSOR
WARNING
OPTIONAL FIELD INSTALLED
BEFORE SERVICING. INSURE THAT ALL
MOTOR CAPACITORS HAVE DISCHARGED
STORED VOLTAGE. UNITS WITH VARIABLE
INCLUDING REMOTE DISCONNECTS AND
DISCONNECT ALL ELECTRIC POWER
HAZARDOUS VOLTAGE!
FOLLOW LOCK OUT AND TAG PROCEDURES
PARA LAS UNIDADES CON TRANSMISIÓN
INSTRUCCIONES PARA LA DESCARGA
DE VELOCIDAD VARIABLE, CONSULTE LAS
AVERTISSEMENT
ADVERTENCIA
NE PAS RESPECTER CES MESURES DE
INSTRUCTIONS FOR CAPACITOR DISCHARGE.
IN DEATH OR SERIOUS INJURY.
INSTRUCTIONS DE L'ENTRAÃŽNEMENT POUR
VITESSE VARIABLE, SE REPORTER AUX
DÉCHARGÉS. DANS LE CAS D'UNITÉS
LES CONDENSATEURS DES MOTEURS SONT
TOUTE INTERVENTION. VÉRIFIER QUE TOUS
VERROUILLAGE ET DES ÉTIQUETTES AVANT
OUVRIR LES SECTIONNEURS À DISTANCE,
PRÉCAUTION PEUT ENTRAÎNER DES
BLESSURES GRAVES POUVANT ÊTRE
DÉCHARGER LES CONDENSATEURS.
TENSION DANGEREUSE!
SPEED DRIVE, REFER TO DRIVE
FAILURE TO DO THE ABOVE COULD RESULT
COMPORTANT DES ENTRAÎNEMENTS À
PUIS SUIVRE LES PROCÉDURES DE
COUPER TOUTES LES TENSIONS ET
SERVICIO. ASEGÚRESE DE QUE TODOS
ETIQUETADO ANTES DE PROCEDER AL
SIGA LOS PROCEDIMIENTOS DE CIERRE Y
INCLUSO LAS DESCONEXIONES REMOTAS Y
LOS CAPACITORES DEL MOTOR HAYAN
iVOLTAJE PELIGROSO!
DESCONECTE TODA LA ENERGÃA ELÉCTRICA,
DESCARGADO EL VOLTAJE ALMACENADO.
O SERIAS LESIONES PERSONALES.
INDICADO, PODRÃA OCASIONAR LA MUERTE
EL NO REALIZAR LO ANTERIORMENTE
RECONFIGURED AS A CO2 SENSOR INPUT VIA THE COMMUNICATIONS INTERFACE.
MAINTAINED TO PREVENT PERMANENT DAMAGE TO CONTROL BOARD. IF ONE LEG OF 24VAC
CONTACTORS ARE 24 VAC: 12VA MAX/COIL (MERCURY CONTACTORS). 10VA MAX/COIL
IF UNIT MOUNTED TRANFORMER IS NOT PROVIDED, POLARITY FROM UNIT TO UNIT MUST BE
TRANSFORMER. THE BINARY INPUT CAN BE RECONFIGURED AS AN OCCUPANCY INPUT VIA THE
AS SHIPPED, THE AUX INPUT IS CONFIGURED AS AN AUX TEMP INPUT. THE AUX INPUT CAN BE
NO ADDITIONAL WIRING REQUIRED FOR NIGHT SETBACK OVERRIDE (ON/CANCEL).
THE OPTIONAL BINARY INPUT CONNECTS BETWEEN TB4-1 (BIP) AND 24VAC (HOT) FROM
OPTIONAL FUSE, DISCONNECT SWITCH & TRANSFORMER LOCATED IN HEATER.
SUPPLY IS GROUNDED, THEN GROUND LEG MUST BE CONNECTED TO TB1-2.
S TERMINAL NOT TO BE USED WITH VARITRANE.
OPTIONAL OR ALTERNATE WIRING
FIELD WIRING
FACTORY WIRING
1/4" QUICK CONNECT REQUIRED FOR ALL FIELD CONNECTIONS.
ZONE SENSOR TERMINALS 1 (-) AND 2 (+) REQUIRE SHIELDED TWISTED PAIR
WIRING FOR COMMUNICATIONS JACK EQUIPPED ZONE SENSOR OPTION.
ZONE SENSOR TERMINALS 6 AND 7 REQUIRE SHIELDED TWISTED PAIR
WIRING FOR OPTIONAL USE OF COMMUNICATIONS JACK.
OPTIONAL FACTORY INSTALLED
11.
(MAGNETIC CONTACTORS)
COMMUNICATIONS INTERFACE.
10.
9.
8.
7.
6.
NOTE:
COMMUNICATIONS WIRING
OCCUPANCY SENSOR
5.
4.
3.
2.
1.
GR (NC CONTACT)
OPTIONAL FIELD INSTALLED
BK (RETURN)
SHIELDED TWISTED PAIR
5.
Y
R (HOT)
O (COMMON)
IN
IN
OUT
OUT
(TB1-1) 24VAC
(TB1-1) 24VAC
(TB4-1) BIP
NOT CONNECTED
(TB1-2) GND
DEL CONDENSADOR.
D.D.C.\U.C.M.
CONTROL BOX
AUX TEMP SENSOR
TB3-5
WIRELESS
OPTIONAL
6.
TB3-6
MORTELLES.
OUT
V
ACTUATOR
DAMPER
HOT
TB1
-2
TB2-1
TB2-2
+ -
TB2-3
+
TB2
-4
-
ADDRESS
SWITCH
TB2-6
TB2-5
+ -
YEL GRN
D.D.C.\U.C.M.
CONTROL BOARD
BIP
J9
J11
J10
J7
J8
O
R
V
BR
ACT
J1
1
TB
4-1
T
B
1-1
CONTACTOR(S)
HEATER STAGE
TRANSFORMER
OPTIONAL
1ST STG.
3RD STG.
2ND STG.
3RD 2ND
HOT
1ST
9.
Y
BL
10.
O
PEN
CLO
SE
HO
T
TRANSDUCER
PRESSURE
GNDSET
TB3
-2
TB3-1
ZONE
TB
3-3
GND A/CO2
TB3
-5
TB3-
6
GND
24V
PRESS
S
7.
1
G
BK
J3
R
+
VOUT
-
T
B
1-2
TB1-1
CO2
SENSOR
6.
WA
LL
MOUNTED
DUCT
MOUNTED
24V
GND
+
0
3.
1(-)2(+) 3
TB2-6
TB2-5
11
4.
710 6
(WITHOUT HEAT)
CONTROL CIRCUIT
WIRING
LOAD= 12VA
NEC CLASS-2
24VAC 60HZ
8.
TB1-1
TB1-2
TB2-6
24VAC
WIRELESS
INSTALLED
FACTORY
OPTIONAL
(TB3-5) A/CO2
(TB1-1) 24V
(TB3-6) GND
4.
2 1
TB3-1
3 2 1
TB3-1
TB3-2
GND
24V
BL
TB1-2
TB
1-1
Y
Y
BL

Table of Contents

Related product manuals