EasyManua.ls Logo

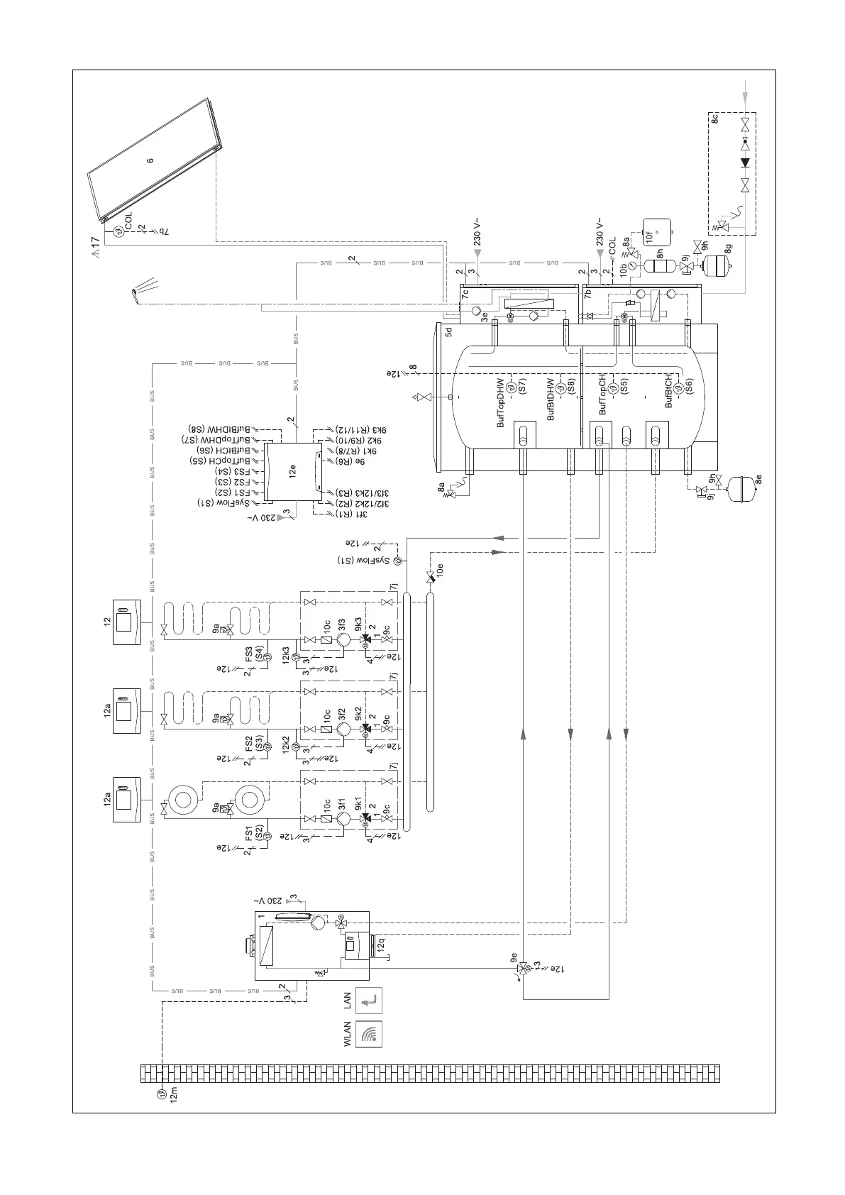
Vaillant VR 71 - 4.9.7.4 Basic system diagram 0020260774

Vaillant VR 71
64 pages
Print Icon
To Next Page IconTo Next Page
To Next Page IconTo Next Page
To Previous Page IconTo Previous Page
To Previous Page IconTo Previous Page
Loading...
52 Operating and installation instructions 0020288151_04
4.9.7.4 Basic system diagram 0020260774

Table of Contents

Other manuals for Vaillant VR 71

Related product manuals