EasyManua.ls Logo

VALTIR QuadGuard - Page 33

Default Icon
68 pages
Print Icon
To Next Page IconTo Next Page
To Next Page IconTo Next Page
To Previous Page IconTo Previous Page
To Previous Page IconTo Previous Page
Loading...
Valtir.com 32 Revision D November 2022
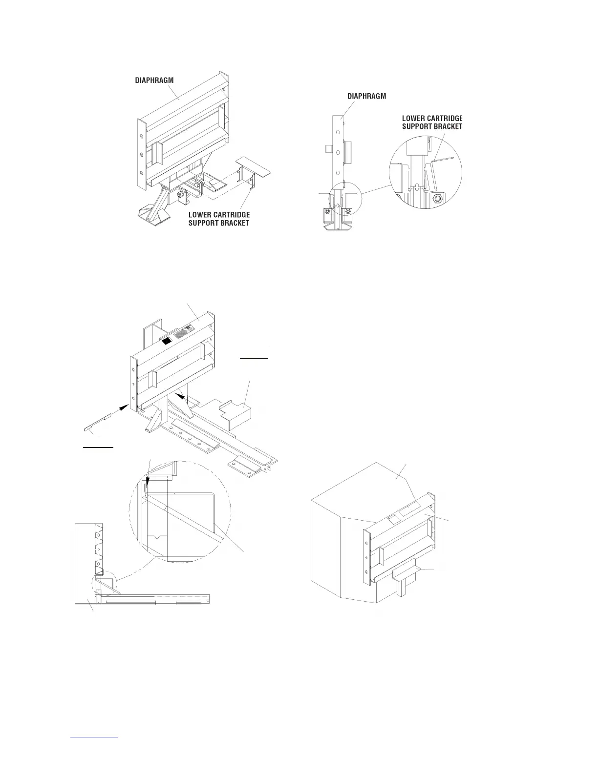
Figure 32
Lower Cartridge Support Bracket
(Tension Strut Backup)
Figure 33
Lower Cartridge Support Bracket
(Concrete Backup)
STEP II
INSERT “KEEPER”
STEP I
INSERT LOWER CARTRIDGE
SUPPORT BRACKET
Figure 31
Lower Cartridge Support Bracket Assembly
TENSION STRUT BACKUP
CONCRETE BACKUP
FACE PLATE
LOWER CARTRIDGE
SUPPORT BRACKET
CARTRIDGE SUPPORT
BRACKET IS WELDED TO FACE
PLATE OF CONCRETE BACKUP
LOWER CARTRIDGE
SUPPORT BRACKET
TENSION STRUT BACKUP

Related product manuals