EasyManua.ls Logo

Vertiv Liebert EFC - Page 63

Vertiv Liebert EFC
76 pages
Print Icon
To Next Page IconTo Next Page
To Next Page IconTo Next Page
To Previous Page IconTo Previous Page
To Previous Page IconTo Previous Page
Loading...
B - 4VERTIV™ - Liebert
®
EFC - UM - 10040805MAN_ENG - 30.03.2023
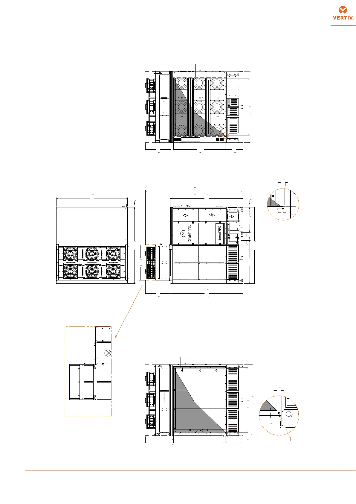
Enclosure B - Dimensional Data/Connections
Liebert
®
EFC400
 Here shown the single unit left, on the single
unit right the electrical panel is on the opposite side
3650.0
143.70
2062.5
81.20
172.5
6.79
3470.0
136.61
1217.0
47.91
3493.0
137.52
4687.0
184.53
1198.3
47.18
1700.0
66.93
165.0
6.50
3100.0
122.05
AIR OUT
135.0
5.31
860.0
33.86
2470.0
97.24
AIR OUT
140.0
5.51
325.0
12.80
2750.0
108.27
AIR IN
325.0
12.80
860.0
33.86
2472.0
97.32
AIR IN
139.5
5.49
A
DET. A
40.0
1.57
M8, TYP 30
B
DET. B
40.0
1.57
40.0
1.57
M8, TYP 30
20.0
.79
20.0
.79
20.0
.79
3654.0
143.86
116.0
4.57
3411.0
134.29
3400.0
133.86
216.7
8.53
UNIT WITH TOP AIR DISCHARGE
40.0
1.57
120.0
4.72
359.0
14.13
TYP
392.5
15.45
TYP
359.0
14.13
TYP
398.5
15.69
TYP
1215.5
47.85
1217.0
47.91

Table of Contents

Related product manuals