EasyManua.ls Logo

Vertiv Liebert EFC - Page 62

Vertiv Liebert EFC
76 pages
Print Icon
To Next Page IconTo Next Page
To Next Page IconTo Next Page
To Previous Page IconTo Previous Page
To Previous Page IconTo Previous Page
Loading...
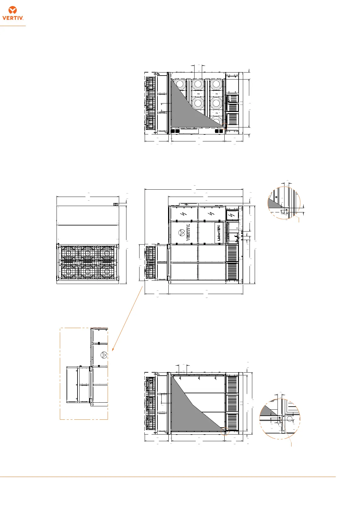
Enclosure B - Dimensional Data/Connections
B - 3 VERTIV™ - Liebert
®
EFC - UM - 10040805MAN_ENG - 30.03.2023
Liebert
®

3650.0
143.70
2062.5
81.20
172.5
6.79
3470.0
136.61
1117.0
43.98
3493.0
137.52
4587.0
180.59
1198.3
47.18
1700.0
66.93
165.0
6.50
2600.0
102.36
AIR OUT
135.0
5.31
860.0
33.86
2470.0
97.24
AIR OUT
140.0
5.51
1117.0
43.98
325.0
12.80
2250.0
88.58
AIR IN
325.0
12.80
860.0
33.86
2472.0
97.32
AIR IN
139.5
5.49
1115.5
43.92
A
DET. A
40.0
1.57
M8, TYP 26
B
DET. B
40.0
1.57
40.0
1.57
M8, TYP 26
20.0
.79
20.0
.79
20.0
.79
20.0
.79
3654.0
143.86
116.0
4.57
2911.0
114.61
2900.0
114.17
382.0
15.04
TYP
440.0
17.32
TYP
359.0
14.13
TYP
359.0
14.13
TYP
216.7
8.53
UNIT WITH TOP AIR DISCHARGE
40.0
1.57
120.0
4.72
 Here shown the single unit left, on the single
unit right the electrical panel is on the opposite side

Table of Contents

Related product manuals