EasyManua.ls Logo

Viadrus K4 - Page 34

Viadrus K4
56 pages
Print Icon
To Next Page IconTo Next Page
To Next Page IconTo Next Page
To Previous Page IconTo Previous Page
To Previous Page IconTo Previous Page
Loading...
Servicing
34
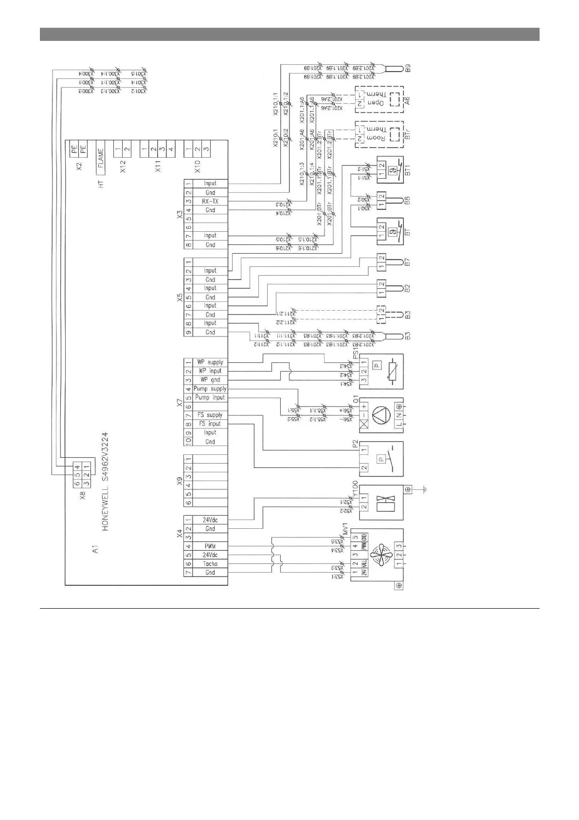
Fig. . 20 Boiler wiring diagram (extra-low voltage)
BT SAFETY THERMOSTAT
BT1 EXCHANGER THERMAL FUSE
BTr ROOM THERMOSTAT
MV1 FAN
PS1 WATER PRESSURE SENSOR
P2 HW FLOW SENSOR
Q1 PUMP
Y100 GAS VALVE
LEGEND:
A1 CONTROL BOARD WITH LCD SCREEN
A6 ROOM INSTRUMENT OPENTHERM
B2 HEATING WATER SENSOR
B3 HOT WATER SENSOR
B7 RETURN WATER SENSOR
B8 FLUE GAS SENSOR
B9 EXTERNAL SENSOR

Table of Contents

Related product manuals