EasyManua.ls Logo

Viadrus K4 - Page 37

Viadrus K4
56 pages
Print Icon
To Next Page IconTo Next Page
To Next Page IconTo Next Page
To Previous Page IconTo Previous Page
To Previous Page IconTo Previous Page
Loading...
Servicing
37
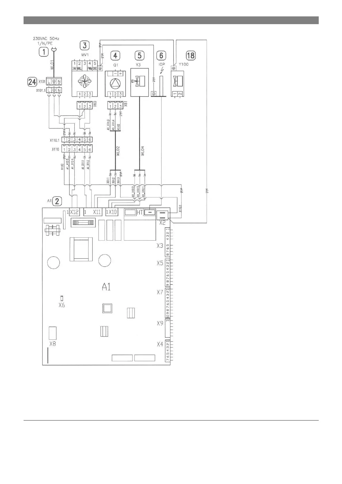
1. Power mains 230VAC,
2. Panel with LCD screen
3. Fan,
4. Pump,
5. Three-way valve,
6. Ignition and Ionization electrode,
7. External sensor,
18. Gas valve
24. Euro connector – the boiler power supply
bk black
bu blue
bn brown
gnye green-yellow
Fig. . 23 Boiler electrical equipment wiring diagram (low voltage)

Table of Contents

Related product manuals