EasyManua.ls Logo

Viessmann B1HE-120 - System Layout 1

Viessmann B1HE-120
128 pages
Print Icon
To Next Page IconTo Next Page
To Next Page IconTo Next Page
To Previous Page IconTo Previous Page
To Previous Page IconTo Previous Page
Loading...
33
6167 818 - 10
Vitodens 100-W, B1HE/B1KE Combi Installation/Service
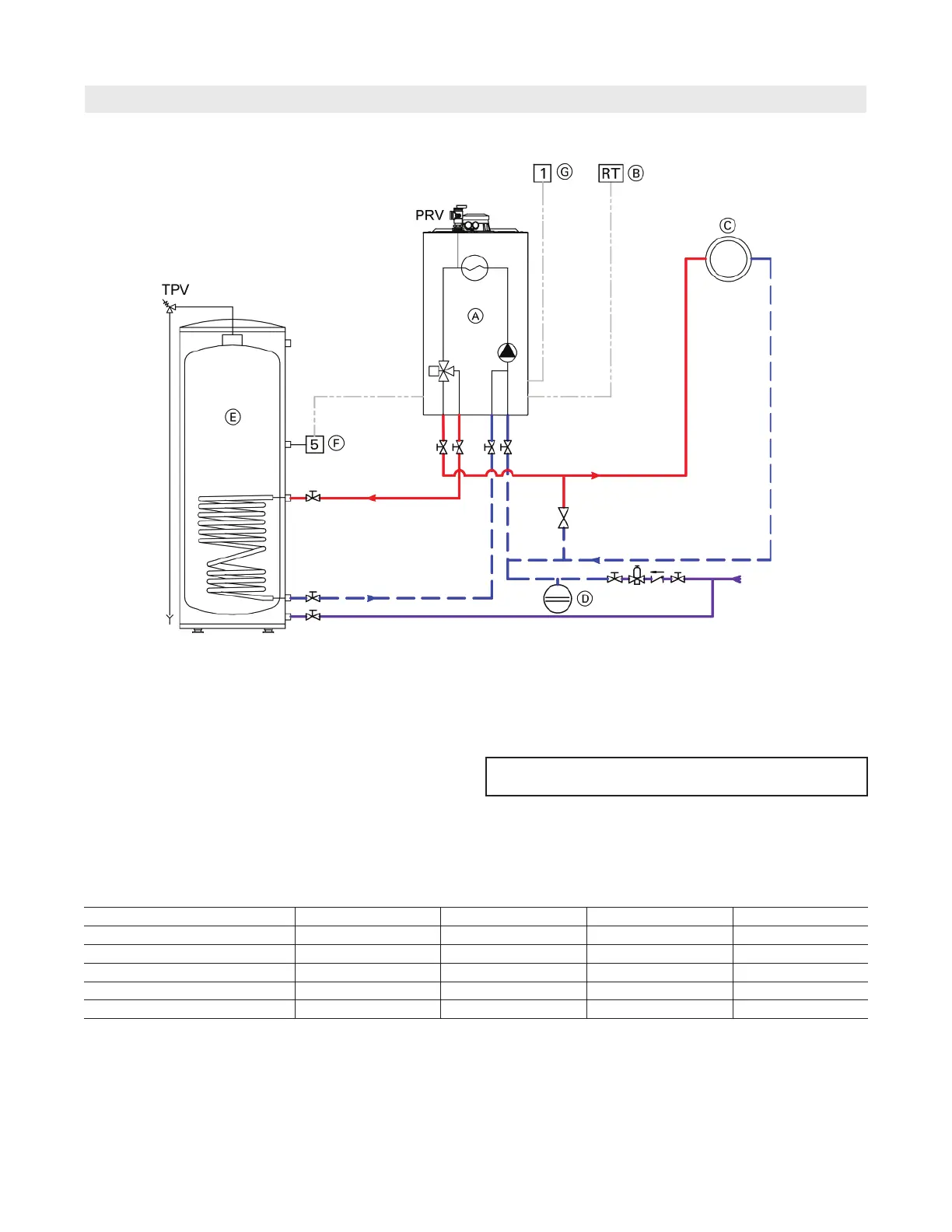
Vitodens 100-W, B1HE 85, 120, 150, 199 with
- DHW storage tank
- one heating circuit
connected directly to the boiler
Legend
PRV Pressure relief valve
TPV Temperature and pressure relief valve
A Vitodens 100-W gas fired condensing boiler
B External boiler controller with room thermostat
connection (field supplied)
C Heating circuit
D Expansion tank
E DHW storage tank
F DHW tank temperature sensor (or DHW temperature
switch)
G Outdoor temperature sensor
Note: Refer to the residual head curves on page 32.
The use of a low-loss header is recommended if
the water flow rate is above or below the operating
range.
The low-loss header is available as accessory part.
Maximum Flow Rates
Ensure that a pressure activated by-pass is installed if
there are system component(s) in C that may isolate the
flow to the pump.
IMPORTANT
System Layout 1
Model B1HE 85 120 150 199
Output MBH 80 113 141 187
t
30ºF (17ºC) rise GPM (L/h) 5.3 (1204)* 7.5 (1703)* 9.4 (2135)* 12.5 (2839)*
35ºF (19.5ºC) rise GPM (L/h) 4.6 (1045) 6.5 (1476)* 8.1 (1840) 10.7 (2430)*
40ºF (22ºC) rise GPM (L/h) 4.0 (908) 5.7 (1295) 7.1 (1613) 9.4 (2135)
* Requires low loss header or closely spaced tees.
Installation

Table of Contents

Related product manuals