EasyManua.ls Logo

Viqua K - Dimensions and Layout

Viqua K
20 pages
Print Icon
To Next Page IconTo Next Page
To Next Page IconTo Next Page
To Previous Page IconTo Previous Page
To Previous Page IconTo Previous Page
Loading...
General Information
6
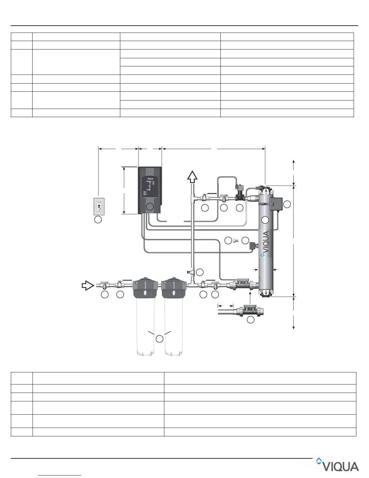
2.1 Dimensions and Layout
8 Bottom bolt (includes screw) 603053 Used for all systems
9 Sleeve Removal Tool 602988 Used for all systems
10 Flow Meter Sensor (PRO models only)
410982R-10 PRO10
410982R-20 PRO20
410982R-30 PRO30
11 Sensor 650580 PRO and Plus models
12 Plug - Basic models
13 Power cord
602636 110V - Used for all systems
602637 220V - Used for all systems
14 Lamp cord - Used for all systems
Figure 2 System - Dimension and Layout
Item Description Function
1 Sample Valve Allows for sampling of raw water.
2 Shut-off Valve Allows for ease of maintenance of pre-treatment equipment.
3 Pre-Treatment
Pre-treatment allows the UV system to operate effectively. The water should meet
certain water quality parameters before entering UV System.
4 Bypass shut-off valve:
Bypass line and valve are optional. Intended to provide emergency water supply in the
event that the UV system is unavailable.
5 Shut-off valve Required to allow maintenance of UV system.
INLET
OUTLET
Clearance
for lamp
removal
72”
(
183cm
)
1”
A B
C
L
L
S
D
Ø
6
1
16
2
3
5
4
13
11
12
7
15
9
8
10”
10
14

Related product manuals