EasyManua.ls Logo

Volvo Penta D5A - D5 A TA HE Cooling System Diagrams

Volvo Penta D5A
116 pages
Print Icon
To Next Page IconTo Next Page
To Next Page IconTo Next Page
To Previous Page IconTo Previous Page
To Previous Page IconTo Previous Page
Loading...
D5A TA HE
P0013706
1
2
3
4
5
6
7
8
9
T
Drain points freshwater system
P0013706
D
D
D
Drain points raw water system
P0013708
D
D
D
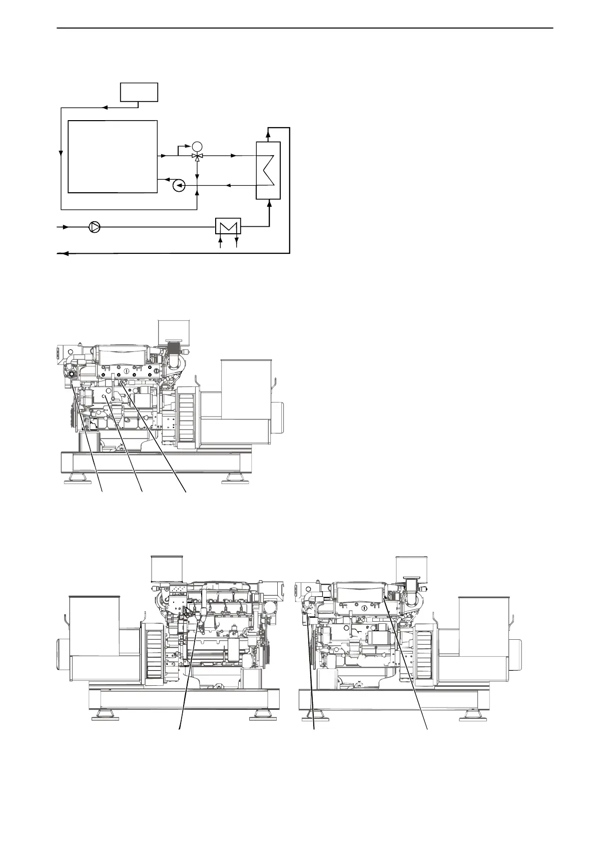
The system includes two circuits. The freshwater
system is cooling the charge air, the cylinder liners
and the cylinder heads. An engine driven cooling
water pump circulates the coolant through the heat
exchanger and through the engine. The raw water
system is cooling the coolant in the freshwater cooling
system. The raw water system is connected to a
seawater inlet or a central cooling system.
1 Engine
2 Freshwater pump
3 Thermostat valve
4 Expansion tank
5 Charge air cooler
6 Heat exchanger
7 Raw water pump
8 Freshwater circuit
9 Raw water circuit
Maintenance
47713337 03-2021 © AB VOLVO PENTA 69

Table of Contents

Related product manuals