EasyManua.ls Logo

Volvo Penta D5A - D7 A TA HE Cooling System Diagrams

Volvo Penta D5A
116 pages
Print Icon
To Next Page IconTo Next Page
To Next Page IconTo Next Page
To Previous Page IconTo Previous Page
To Previous Page IconTo Previous Page
Loading...
D7A TA HE
P0013706
1
2
3
4
5
6
7
8
9
T
Drain points freshwater system
D
D
D
P0013809
Drain points raw water system
D
D
D
P0013810
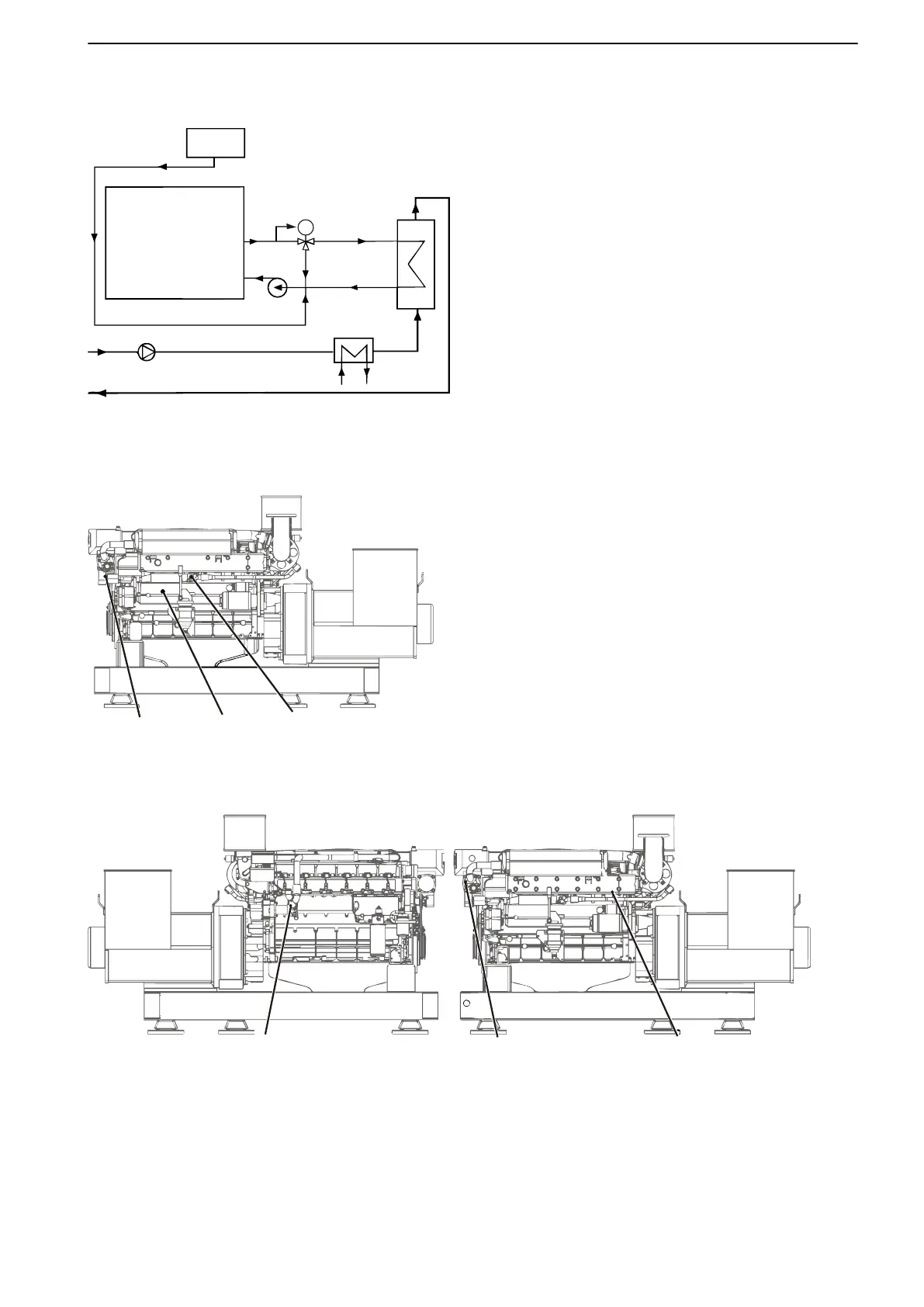
The system includes two circuits. The freshwater
system is cooling the charge air, the cylinder liners
and the cylinder heads. An engine driven cooling
water pump circulate the coolant through the heat
exchanger and through the engine. The rawwater
system is cooling the coolant in the freshwater cooling
system. The rawwater system is connected to a
seawater inlet or a central cooling system.
1 Engine
2 Freshwater pump
3 Thermostat valve
4 Expansion tank
5 Charge air cooler
6 Heat exchanger
7 Raw water pump
8 Freshwater circuit
9 Raw water circuit
Maintenance
47713337 03-2021 © AB VOLVO PENTA 75

Table of Contents

Related product manuals