EasyManua.ls Logo

Wacker Neuson LTN 6K-V

Wacker Neuson LTN 6K-V
106 pages
To Next Page IconTo Next Page
To Next Page IconTo Next Page
To Previous Page IconTo Previous Page
To Previous Page IconTo Previous Page
Loading...
wc_tx003107gb.fm
99
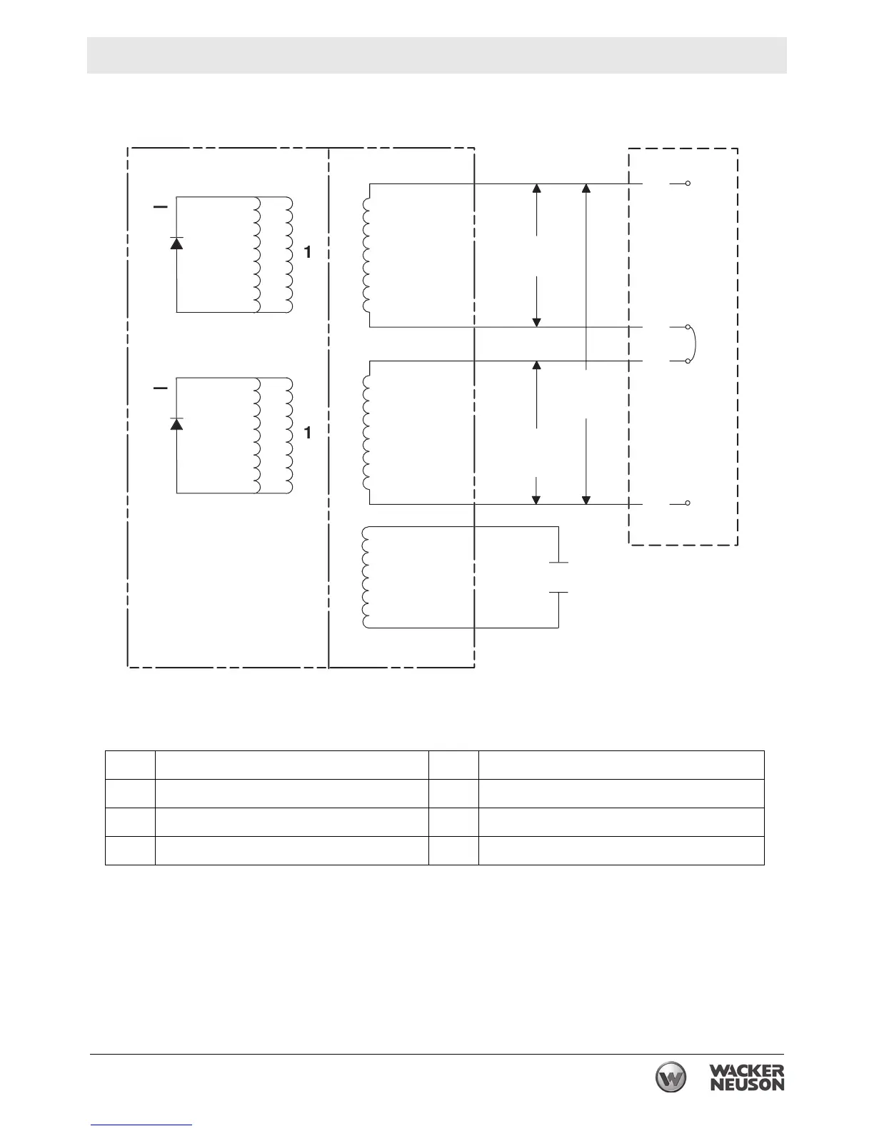
LTN Schematics
11.5 Generator Capacitor Excitation Schematic
wc_
g
r01100
5
CO
MM
ON
6
2
2
8
4
3
5
7
1
C1
+
L1
L1
L2
L3
L3
L4
L4
8
1
+
120V 60 Hz
115V 50 Hz
120V 60 Hz
115V 50 Hz
24
0
V
60
Hz
2
30
V
50
Hz
Ref. Description Ref. Description
1 Rotor 4 Capacitor
2 Stator 5 Generator/Terminal block
3 Excitation coils 6 Control box, lights

Table of Contents

Related product manuals