EasyManua.ls Logo

Washtech XP Series - Installation Diagram

Washtech XP Series
44 pages
Print Icon
To Next Page IconTo Next Page
To Next Page IconTo Next Page
To Previous Page IconTo Previous Page
To Previous Page IconTo Previous Page
Loading...
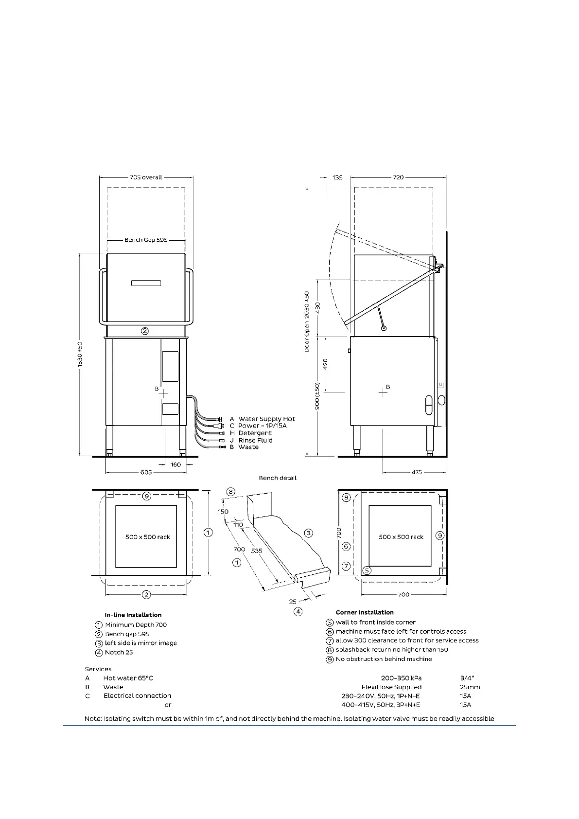
Installation Diagram
XPD Installation Diagram
Part #: WXP0031
Date: 16-07-19
Version: 1-A
Service Manual XP3
7
Revision 1F

Related product manuals