EasyManua.ls Logo

WattMaster OE230 - Digital Room Sensor OE217-04; Description and Features; Mounting and Specifications

Default Icon
24 pages
Print Icon
To Next Page IconTo Next Page
To Next Page IconTo Next Page
To Previous Page IconTo Previous Page
To Previous Page IconTo Previous Page
Loading...
Form: AZ2-OE217-04-EBUS-DRS-1D.doc Page 1 of 1
Description
The OE217-04 E-BUS Digital Room
Temperature/Humidity Sensor Without Display is used
to sense Space Temperature & Space Humidity in
locations or applications where a display and its
associated features are not wanted or needed.
Because it has no display it does not have the
override, status or setpoint display capabilities that the
OE217-02 & OE217-03 have.
This sensor can be used with either the AZ 2 Controller
(OE630-23-AZ2) or the GPC-XP Controller (OE338-23-
GPCXP). It cannot be used with the Zone/VAV
Controllers (OE326-23D-AZ2 or OE326-23I-AZ2).
The sensors connect to the AZ 2 Main Controller, or
GPC-XP Controller using E-BUS cables connected
between the controller and the sensor or to the wire
terminals using (4) conductor cable. The E-BUS cables
are available in multiple lengths to fit your job
requirements. The E-BUS cables or (4) conductor
cable should not run in conduit with other AC line
voltage wiring or with any conductors carrying highly
inductive loads.
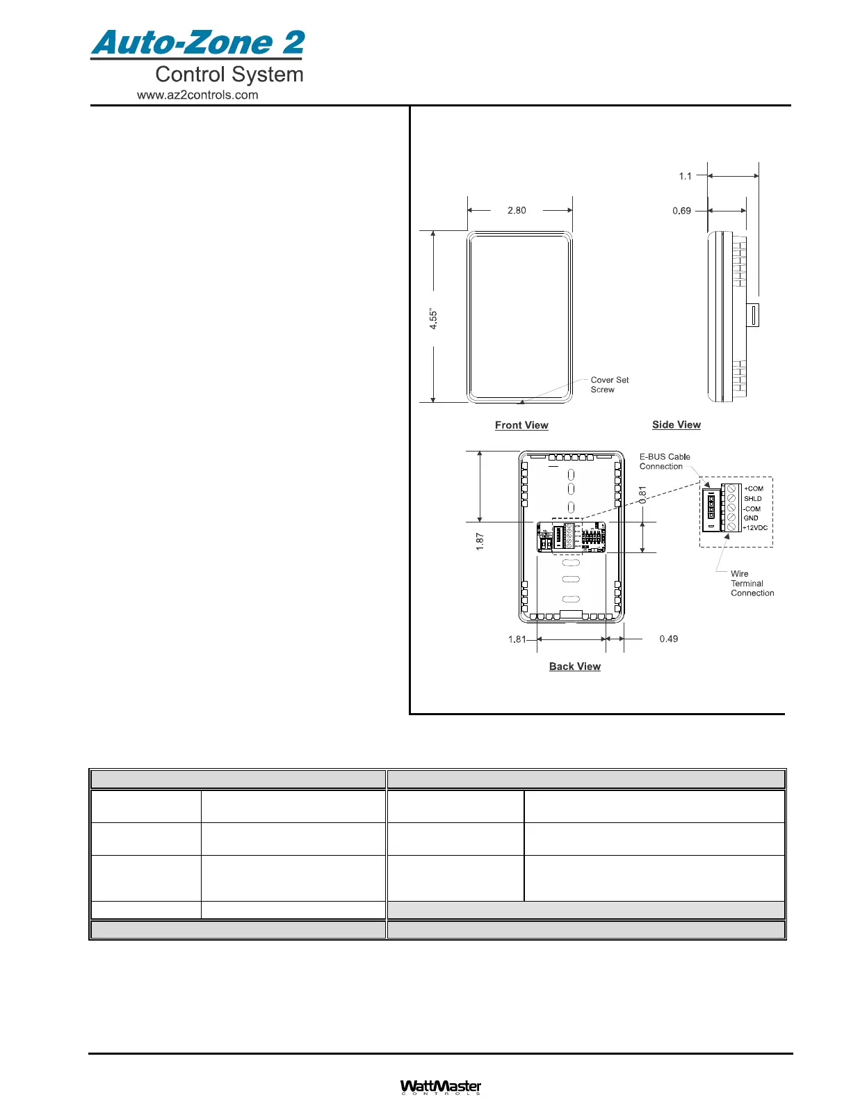
Mounting
The Digital Room Sensor is designed to be mounted
to a vertical, 2” x 4” electrical box recessed in the
wall. If the wall cannot be penetrated, a plastic
surface mount box such as those made by
Wiremold
TM
, may be used to mount the sensor to
the wall surface. The Sensor is mounted by
removing the front cover and fastening the housing
base to the electrical box using the supplied (2)
6/32” x 1” machine screws. The E-BUS cable is then
plugged into the E-BUS connector or the or (4)
conductor cable is wired to the wire terminals. The
cover is then placed onto the housing base and the
Allen Screw on the bottom of the base is adjusted to
hold the cover in place.
OE217-04 E-BUS Digital
Room Temp/Humidity Sensor
Without Display
Technical Data OE217-04 E-BUS Digital Room Temp/Humidity Sensor
Sensor Element Type III Thermistor 10k ohm
@ 77 F or Sensirion Device
Display None
Sensor Reading
Range
40F to 120F
RH = 0-100%
Connection
E-BUS Connector or
Wire Terminals
Ambient
Temperature
Limits
-40F to 180F
Weight
3.2 oz.
Accuracy
RH +/-3%, Temp +/- .8F
Three Year Warranty WattMaster reserves the right to change specifications without notice